Первичная продажа
С отделкой
сдача ГК: 3 кв. 2026 года
Владыкино
9 минут пешком
18 951 610 ₽
527 900 ₽/м²
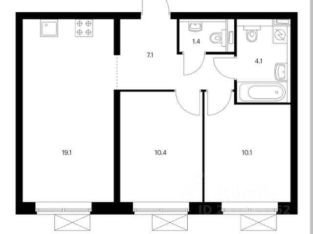
Продаётся 1-комн. квартира площадью 35,9 кв.м на 15 этаже 33 этажного дома (Корпус 2.1.1, Секция 1) проекта ПИК Сигнальный 16. Светлый просторный подъезд на уровне земли, функциональная планировка, большие окна, с отделкой.
"Сигнальный 16" возводится в районе Отрадное, рядом с парком Ботанический сад, в 10 минутах ходьбы от станции метро и МЦК "Владыкино". На автомобиле до Алтуфьевского шоссе ехать 5 минут, до ТТК — 20 минут.
МультиХаб "Сигнал" - новое уникальное пространство для спорта и отдыха на территории проекта Сигнальный 16. В основе всего здесь заложена концепция волн, их плавности и гибкости. Авторы переосмыслили их в виде изогнутых линий, которые встречаются по всей территории: на памп-треке, на игровой площадке.
В МультиХаб "Сигнал" будет всё для комфортного отдыха после насыщенного рабочего дня. Помимо тренажёров и брусьев с турниками, здесь расположатся качели-гнёзда, качели-лавочки и лежаки. Также продумана извилистая прогулочная зона, идущая вдоль детской игровой площадки.
Детям любых возрастов понравится исследовать уникальное игровое пространство. Ребятам предстоит пройти полосу препятствий: проползти по тоннелю в полусфере, затем взобраться на стальной купол, а после этого — вскарабкаться по канатной сетке длиной в 15 метров, ведущей прямиком к зиплайну.
А главной радостью для взрослых и детей станет волнообразный памп-трек с виражами для катания на самокатах, роликах и велосипедах. Для самых маленьких или новичков в спорте предусмотрен бесшумный асфальтовый боул, тренироваться в котором разрешено детям от 5 лет.
В проект входят жилые дома, подземные паркинги, школа и детский сад. Все квартиры в домах будут с отделкой — после заселения останется только расставить мебель. На первых этажах откроются магазины и кафе, а прямо под окнами появятся современные детские площадки и места для отдыха.
Жилой квартал находится вдали от шума крупных магистралей. Вокруг много скверов и парков, есть школы и детские сады, поликлиники и магазины. Поблизости открыты фитнес-клубы и крупные торговые центры.
Недалеко от проекта расположен один из самых красивых парков Москвы — Главный ботанический сад имени Н.В. Цицина РАН, основанный в 1945 году. Это один из крупнейших ботанических садов в Европе. Территория парка является особо охраняемой территорией федерального значения и объектом культурного наследия.
Дойти до "Ботанического сада" жители "Сигнального 16" смогут по безопасной и удобной дороге рядом с кварталом за 15 минут. Широкие асфальтированные тротуары сделают путь приятным как для обычных пешеходов, так и для родителей с колясками, велосипедистов и маломобильных жителей. Артикуль 853753 (АО "СПЕЦИАЛИЗИРОВАННЫЙ ЗАСТРОЙЩИК "РАДУГА")






















































































