433 800 ₽/м²
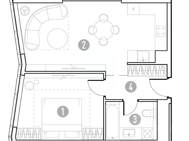
Продается 1-к квартира площадью 28.7 кв.м. на 3-м этаже 35 этажного дома в ЖК "УНО Горбунова" от ГК ОСНОВА. Старт продаж! Жилой комплекс УНО Горбунова — современное решение для комфортного проживания в западном округе Москвы, всего в 20 минутах от Арбата. Стильная архитектура с волнообразными фасадами, продуманные планировки квартир и уютный благоустроенный двор всё создает комфортную атмосферу для жизни. Комплекс расположен в Можайском районе, что обеспечивает легкий доступ к транспортным маршрутам: станция МЦД "Сетунь" в шаговой доступности, до метро "Молодежная" всего 10 минут на транспорте, а для автомобилистов удобные выезды на ключевые магистрали.






















































































