


528 300 ₽/м²
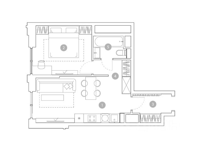
Продается 1-к квартира площадью 40.7 кв.м. на 6-м этаже Уникальная концепция проекта сочетает в себе все преимущества жизни стремительного мегаполиса и спокойного приватного отдыха в единении с природой. На закрытой благоустроенной территории предусмотрены: собственный подземный паркинг, разнообразная инфраструктура на первых этажах с дизайнерскими лобби, ресепшен-службой и комфортабельными зонами отдыха, хобби-комнатой, залом для проведения частных мероприятий, а также супермаркет, кафе и свой детский сад.







































































































































































