Номер в базе: 8562780. ГОТОВЫЙ ДОМ ПОД СЕМЕЙНУЮ ИПОТЕКУ 6% Продается просторный дом площадью 130 кв. м на участке 6 соток в живописной локации в 30 км от МКАД по Новорижскому шоссе. Земля относится к категории населенных пунктов. Дом полностью готов к комфортному круглогодичному проживанию: утепленные стены (150 мм), пол и крыша (200 мм), звукоизоляция межкомнатных перегородок (100 мм) и потолка (200 мм) обеспечивают тепло и тишину даже в сильные морозы. Планировка включает две спальни, просторную гостиную, большую кухню и мансардный этаж площадью 17 кв. м. Высокие потолки (5 м) и панорамные энергоэффективные окна от REHAU создают ощущение простора и наполняют дом естественным светом. Все коммуникации подключены: электричество (15 кВт), вода из собственной скважины, канализация — септик на 5-6 человек. Дополнительные преимущества — теплые полы, продуманная разводка электрики и качественная внутренняя отделка имитацией бруса с заводской покраской. Участок выровнен, огорожен и расположен в закрытой территории , что гарантирует приватность и безопасность. Платежи деревенские. Здесь достаточно места для бани, гаража или сада. Окружение — лес и поле, тишина и свежий воздух, при этом в пешей доступности остановка "Еремеева" с автобусами до школы (маршрут 39) и ж/д станция "159 км" с прямым сообщением в Москву. До столицы можно добраться за 30 минут на машине, а магазины и другие бытовые объекты находятся всего в 5 минутах езды. Этот дом сочетает преимущества загородной жизни с удобной транспортной доступностью. Здесь есть все для комфортного проживания семьи: продуманная инфраструктура, надежные коммуникации, качественные материалы и приятное окружение. Сделка может быть оформлена в кратчайшие сроки, доступен оперативный показ. Код пользователя: 177861
Купить загородную недвижимость в Московской области в округе Истра муниципальный
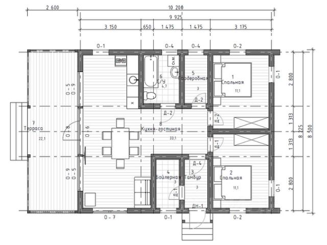
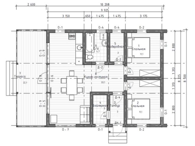
Арт. 117952822 В продаже Уютный дом общей площадью 130 кв.м. на участке 7 соток Особенностью этого дома является великолепная открытая терраса, где вы сможете наслаждаться свежим воздухом и живописными видами в любое время года. Панорамные окна создают ощущение простора и наполняют помещения естественным светом, делая каждый день светлым и уютным. Преимущества дома: • Продуманная планировка (2 спальни, огромная гостиная, большая кухня) • Высокие потолки • Открытая терраса для отдыха и приёма гостей • Отличная инсоляция всех помещений • Возможность прописки • Качественная чистовая отделка • Полностью готовый и оборудованный сан. узел • В доме проведены все коммуникации (электричество 15квт, канализация- Станция биологической очистки рассчитанная на 5-6 человек, скважина) • Высокий потолок (5 метров в коньке) • Красивые качественные панорамные окна с высокой энергоэффективностью (усиленное стекло) от фирмы Rehau • Имитация бруса крашенная на заводе Этот дом создан для тех, кто ценит комфорт и современный стиль жизни. Здесь каждый найдёт своё идеальное пространство для отдыха и развлечений. Не упустите возможность стать владельцем этого замечательного дома звоните прямо сейчас для просмотра! Поторопитесь, такие предложения долго не задерживаются! УЧАСТОК: Просторный участок правильной формы позволит реализовать все ваши идеи по благоустройству территории. Здесь легко разместятся: Зона отдыха с барбекю Детская площадка Сад и огород Парковка для автомобилей Закрытая территория, на въезде шлагбаум, забор по периметру Участок находится на расстоянии 30 км от МКАД по Новорижскому шоссе Приятные соседи и дружественная атмосфера Удобная транспортная доступность: всего 30 минут езды до Москвы и 5 минут до магазинов В шаговой доступности расположены церковь и автобусная остановка Еремеева, откуда ежедневно ходят рейсы до школы (39 Автобус) Всего в 10 минутах пешком расположена железнодорожная станция 159КМ, откуда можно легко добраться до Москвы ИНДИВИДУАЛЬНЫЕ ВЫГОДНЫЕ УСЛОВИЯ ПО ИПОТЕКЕ ОТ 12,5%! ПОМОЩЬ В ОДОБРЕНИИ ИПОТЕКИ СЕМЕЙНАЯ ИПОТЕКА ОТ 3,5% ПОКУПКА БЕЗ КОМИССИИ Успейте приобрести и переехать в уже готовый дом !
продается уютный домик, на участке лесные а так же плодородные деревья
ФОТО РЕАЛЬНЫЕ, ПРОДАЕТСЯ ИМЕННО ЭТОТ ДОМ, ГОТОВЫЙ Продаётся уютный дом 130 кв.м на участке 7 соток в окружении живописного леса и природной красоты! Адрес: г.о. Истра, деревня Еремеево, улица Дарьин Луг, дом 7А Продажа от СОБСТВЕННИКА Возможна СЕМЕЙНАЯ ИПОТЕКА, ЛЬГОТНАЯ ИПОТЕКА Дом: — Площадь дома 130 квадратных метров с адресом и возможностью прописки, что обеспечивает комфортное пространство для всей семьи — Качественная чистовая отделка с полностью готовым санузлом - осталась только мебель и можно жить! — Полностью утепленный (пол и крыша 200мм, стены 150мм) и оборудованные звукоизоляцией (межкомнатные стены 100мм, потолок 200мм) для максимального комфорта. ВЫДЕРЖИТ ДАЖЕ САМЫЕ СИЛЬНЫЕ МОРОЗЫ — Все необходимые коммуникации подключены: электричество (15 кВт, Россети), вода из собственной скважины, канализация септик (на 5-6 персон постоянного проживания) — Высоченный потолок (5 метров) — Красивые качественные панорамные окна с высокой энергоэффективностью (усиленное стекло) от фирмы Rehau — Имитация бруса крашенная на заводе — Продуманная планировка: 2 спальни, огромная гостиная, большая кухня и прекрасная крытая терраса Участок и территория: — Площадь участка 7 соток, оптимальная, чтобы расположить и баню, и гараж, и еще много места останется — Закрытая территория, на въезде шлагбаум, забор по периметру — Свой пруд — Участок находится на расстоянии 30 км от МКАД по Новорижскому шоссе — Приятные соседи и дружественная атмосфера — Удобная транспортная доступность: всего 30 минут езды до Москвы и 5 минут до магазинов — В шаговой доступности расположены церковь и автобусная остановка Еремеева, откуда ежедневно ходят рейсы до школы (39 Автобус) — Всего в 10 минутах пешком расположена железнодорожная станция 159КМ, откуда можно легко добраться до Москвы Этот дом - идеальное место для жизни вдали от городской суеты, но при этом с доступом ко всем городским удобствам. Насладитесь живописной природой, комфортом собственного дома и уютом семейного пространства! Звоните и приезжайте на просмотр, с радостью покажем вам дом!
Каркасный дом площадью 71 квадратный метр идеальное решение для комфортного проживания в любом климате. Этот дом сочетает в себе современные технологии строительства и продуманную планировку, обеспечивая максимальный комфорт и уют для всей семьи. Основные характеристики: Прочная конструкция: Надежный каркас гарантирует долговечность и устойчивость здания. Энергоэффективность: Тщательно продуманная теплоизоляция позволяет сохранять тепло зимой и прохладу летом, снижая затраты на отопление и кондиционирование. Функциональность: Просторная планировка включает все необходимые помещения для комфортной жизни от просторной гостиной до уютных спален и современных ванных комнат. Экологичность: Использование экологически чистых материалов при строительстве минимизирует негативное воздействие на окружающую среду. Гибкость дизайна: Возможность реализации различных архитектурных решений позволяет создать дом, который будет соответствовать вашим индивидуальным предпочтениям и требованиям. Этот каркасный дом идеально подходит для постоянного проживания благодаря своей надежности, удобству и энергоэффективности. Он станет вашим уютным гнездышком, где каждый день будет наполнен комфортом и уютом.
Представляем вашему вниманию великолепный дом, созданный с заботой о комфорте и уюте будущих владельцев. Основные преимущества: • Просторная планировка с грамотно распределенными функциональными зонами • Функциональная кухня-трансформер с выходом на террасу идеальное место для семейных обедов и отдыха на свежем воздухе • Два санузла с установленным теплым полом для максимального комфорта • Продуманная система освещения Комфортные помещения: • Две светлые и уютные спальни • Дополнительные помещения для хранения и других нужд • Кладовка для удобного размещения бытовых вещей Особенности: • Два входа в дом для удобства и безопасности • Удачное расположение на последней линии поселка самая тихая и спокойная улица • Все коммуникации подведены: централизованное водоснабжение, электроснабжение 15 кВт с грамотно разведенной электропроводкой • Надежный утеплитель Тех для максимального сохранения тепла Этот дом идеальное сочетание современного комфорта, функциональности и уюта. Здесь продумана каждая деталь для комфортной жизни вашей семьи! Заезжай и живи!
Установлен теплый пол в санузлах, что обеспечивает дополнительный комфорт и уют. Два санузла, что удобно для большой семьи или гостей. Пространство второго света создает ощущение простора и воздушности. Две спальни и рабочий кабинет, идеально подходящие для комфортного проживания и работы. Дополнительные помещения, которые можно использовать по вашему усмотрению. Удобная планировка, способствующая рациональному использованию пространства. Два входа в дом, что обеспечивает удобство доступа и дополнительную безопасность. Супер удобная кухня с выходом на террасу, где можно наслаждаться свежим воздухом и красивыми видами. Наличие кладовок, грамотно распределенных для хранения всего необходимого. Все элементы инфраструктуры грамотно расположены для комфортной жизни. Дом находится на последней линии поселка, на самой тихой улице, что гарантирует спокойствие и уединение. Все коммуникации проведены: вода и электричество (15 кВт), электропроводка разведена по всему дому. Дополнительно: Дом оборудован всем необходимым для комфортной и безопасной жизни, с продуманной планировкой и функциональным дизайном.
Установлен теплый пол в санузлах, что обеспечивает дополнительный комфорт и уют. Два санузла, что удобно для большой семьи или гостей. Пространство второго света создает ощущение простора и воздушности. Две спальни и рабочий кабинет, идеально подходящие для комфортного проживания и работы. Дополнительные помещения, которые можно использовать по вашему усмотрению. Удобная планировка, способствующая рациональному использованию пространства. Два входа в дом, что обеспечивает удобство доступа и дополнительную безопасность. Супер удобная кухня с выходом на террасу, где можно наслаждаться свежим воздухом и красивыми видами. Наличие кладовок, грамотно распределенных для хранения всего необходимого. Все элементы инфраструктуры грамотно расположены для комфортной жизни. Дом находится на последней линии поселка, на самой тихой улице, что гарантирует спокойствие и уединение. Все коммуникации проведены: вода и электричество (15 кВт), электропроводка разведена по всему дому. Дополнительно: Дом оборудован всем необходимым для комфортной и безопасной жизни, с продуманной планировкой и функциональным дизайном.



1-комн.кв. · 38,8 м² · 4/25 этаж
Сдаётся 2евро квартира с евроремонтом и балконом в ЖК Люберецкий. Квартира оборудована всей необходимой мебелью. Ремонт не от застройщика, делали сами. Собственник готов заселить не более 2 взрослых жильцов, можно с детьми. В пешей доступности находятся: школа, детский сад, салон красоты, аптеки, продуктовые супермаркеты, пекарня, ТЦ Светофор и кинотеатр. До ТРЦ МЕГА, гипермаркета Ашан и рынка Садовод— 25 минут на машине. Около дома есть парковочные места. До м. Лухмановская — 12 минут пешком.
Предлагается очень тёплая, просторная, 2х комнатная квартира на 14м этаже 25ти этажного панельного дома 2017 г.п. в Люберцах по адресу: ул. Наташинская, д. 16. Общая площадь 56,7 кв.м. Кухня 10 кв.м. Комнаты изолированные. Санузел раздельный. Три застекленных балкона, в том числе один утепленных. Кондиционер. В кухне установлены фильтры воды и проточный водонагреватель, на случай сезонного отключения воды. Посудомойка, микроволновка. Всё что Вы видите на фото - остается при продаже. Развитая инфраструктура района, всё необходимое в шаговой доступности: магазины, школа, салоны, поликлиника, гимназия, сервисы, фитнес, бассейн. Два взрослых собственника. ДКП. Полная стоимость в договоре. Обременений нет. Показы по договоренности, звоните!
Сдаётся уютная 2-комнатная квартира в современном жилом комплексе в микрорайоне Новое Павлино, Балашиха, на улице Бояринова, 36. Площадь квартиры составляет 45 кв. м, расположена она на 11 этаже 21-этажного дома, построенного в 2024 году. Высота потолков — 2.6 метра. До метро Некрасовка можно добраться на автомобиле за 9 минут. Квартира с евроремонтом и полностью готова к проживанию. В комнатах и на кухне есть вся необходимая мебель. Из техники — холодильник, телевизор и стиральная машина, что делает проживание комфортным. Санузел совмещённый, в ванной комнате есть ванна. Окна выходят во двор, поэтому в квартире тихо и спокойно. Дом новый, с отличной инфраструктурой. Есть наземная парковка, поэтому можно без проблем оставить автомобиль. Для удобства жильцов предусмотрены два пассажирских и один грузовой лифт, что особенно удобно для переезда или перевозки крупногабаритных вещей. В шаговой доступности находятся детские сады и магазины, что делает это место идеальным для семей с детьми. Отличная транспортная доступность позволяет быстро добраться до города и ближайших станций метро. Условия аренды: квартира сдаётся от собственника, без комиссии. Предусмотрен залог. Идеально подойдёт для пары или семьи.
Номер в базе: 10425745. Готовая студия-апартаменты с дизайнерским ремонтом ВЫГОДЫ ПОКУПКИ: 1) Готовое решение — экономия на ремонте и мебели 2) Доступная стоимость — выгодная цена за современное жилье 3) Пассивный доход — высокая ликвидность на арендном рынке О КВАРТИРЕ: 1) Дизайнерский ремонт с двухуровневыми потолками и подсветкой — эстетика и уют 2) Полная комплектация мебелью и техникой — заезжайте и живите 3) Высокие потолки 2.8 м 4) Совмещенный санузел с качественной отделкой О ДОМЕ: 1) Монолитный дом 2016 года постройки 2) 3 пассажирских и грузовой лифт 3) Многоуровневая парковка — решение проблемы с парковочным местом 4) Современные подъезды — чистота и порядок О ЛОКАЦИИ: 1) Развитая инфраструктура района — все необходимое в шаговой доступности 2) Удобная транспортная доступность — быстрое перемещение по городу 3) Современная жилая среда — благоустроенные дворы и зоны отдыха ВАЖНО: 1. Объект не подходит под ипотеку 2. Это апартаменты Отличная возможность приобрести современное жилье с готовым ремонтом без лишних хлопот и дополнительных вложений. Пишите или звоните, чтобы узнать подробности! Код пользователя: 186638
Продаётся прекрасная, светлая, однокомнатная квартира в легкой транспортной доступности до м. Новогиреево и ст. Реутов. Свободна, готова к продаже, в собственности с 1993 года (приватизация), один взрослый собственник, никто не зарегистрирован, ПЕРЕПЛАНИРОВОК НЕТ!!!!! В квартире сделан качественный ремонт (для себя), имеется балкон и совмещенный санузел. Продажа с мебелью (кухонный гарнитур, шкаф-купе). Вокруг дома развитая инфраструктура - рядом школы, детские сады, сетевые магазины (ТЦ Шоколад), МФЦ, Реутовский рынок, городская зона отдыха с прудом, до городской парковки 3 мин. пешком, фитнес и т.д.
Риелторам просьба беспокоить ТОЛЬКО с реальными покупателями!!! Предлагается благоустроенная квартира-студия 29,01 кв. м. с лоджией, с отличным ремонтом. Квартира в идеальном состоянии, фото реальные. Развитая инфраструктура в районе, наличие школы, детского сада, ТЦ, поликлиники. Документы готовы к любому способу покупки, квартира без обременений, никто не прописан. Полная стоимость в договоре.
Просторная, светлая квартира, окна на юго-восток, рядом Кузьминский лесопарк (20 метров) в котором есть детские и спортивные площадки, до метро Котельники 8 минут спокойной ходьбы. Большая кухня и прихожая, есть удобная гардеробная 6 кв.м. со стеллажом и вешалкой. В округе развитая инфраструктура: магазины, почта, аптеки, торговые центры и т.д. Сдадим квартиру на длительный срок аккуратным и платёжеспособным людям.
Уютная светлая двушка в тихом спальном районе. Окна на красивые цветущие деревья. Комнаты смежно-изолированные. Ремонт - косметический (слишком требовательных просьба не беспокоить), никаких посторонних запахов, квартира сухая теплая, на полах - линолеум и оргалит, на стенах - обои, в санузлах на стенах - пластиковые панели под плитку. Рядом лицей Nr.12, до метро D3 Люберцы - 17 минут пешком, но ходит автобус. Квартира была выкуплена по ДКП с аукционных торгов, в настоящее время - один собственник 48лет, прописанных нет, без ипотеки, кредитов, мат.капитала и прочих обременений. При продаже будет указана полная стоимость в договоре. Подойдет для самостоятельного проживания либо для арендаторов.
Код объекта: 1910307. Уникальное предложение в Реутове: просторная и уютная однокомнатная квартира по адресу улица Октября, 5. Это идеальный выбор для тех, кто ищет комфортное жильё в районе с развитой инфраструктурой. Описание квартиры: - Квартира расположена на 8 этаже 9-этажного панельного дома 1977 года постройки. Общая площадь составляет 32,2 кв. м, из которых 18,6 кв. м — жилая площадь, 5,9 кв. м - кухня со встроенной мебелью. Высота потолков 2,7 м создаёт ощущение простора. Евроремонт выполнен качественно, заезжать и жить можно сразу. Окна выходят на улицу и во двор, обеспечивая достаточное естественное освещение. Дом и двор: - Этот панельный дом 1977 года постройки, чистый подъезд, приятные соседи. Во дворе дома детский сад, спортивная школа. Транспортная доступность: - 11 минут пешком до метро Новокосино, 5 минут пешком до станции ж/д Реутов. Рядом с домом остановка общественного транспорта - можно быстро доехать автобусом до метро Первомайская. Инфраструктура рядом: Инфраструктура - отличная, здесь есть все необходимое для комфортной жизни в шаговой доступности: - Магазины, торговые центры (ТЦ Реутов Парк, ТЦ Шоколад), кафе и рестораны - Рынок - где можно купить свежие продукты: мясо, рыбу, овощи. - Медицина: Реутовская городская больница 2, Детская и взрослая поликлиники, частные медицинские клиники, аптеки - Образование: детские сады и школы, неподалеку Дворец культуры Мир (где работают многочисленные кружки и секции) - Парк Реутовский в 10-15 минутах ходьбы - Стадион Старт Условия продажи: - Свободная продажа. Один взрослый собственник. Без обременений. В собственности более пяти лет. Позвоните нам прямо сейчас, чтобы узнать больше и записаться на просмотр. - Работать с МИЭЛЬ выгодно и надёжно: покупателю выдаётся Правовой сертификат, гарантирующий юридическую чистоту объекта возможна ипотека с особыми условиями для клиентов МИЭЛЬ от банков-партнёров, работаем с любыми источниками финансирования (материнский капитал, военный сертификат и т.д.) бонусы по партнёрским программам МИЭЛЬ на товары и услуги от известных брендов.
Код объекта: 1907009. Продажа просторной, светлой квартиры в кирпичном доме. Просторная комната с лоджией и кухня. Санузел совмещен был изначально, и он требует ремонта. Хороший чистый подъезд. Более 5 лет в собственности. Оин собственник
Сдаётся с начала февраля евродвушка с новой мебелью и техникой в новом микрорайоне Центр-2. Дому 3 года. Просторная кухня-гостиная оборудование кухонным гарнитур ом со встроенной электропанелью и духовкой с вытяжкой. Имеется двухкамерный холодильник. В зоне гостиной имеется раскладной диван, торшер, телевизор с тумбочкой и раскладной стол со стульями. В комнате двухспальная кровать из сосны с новым матрасом и двумя тумбочками, на которых расположены лампы. В спальне имеется большой шкаф, гладильная доска и пылесос. Санузел оборудован новой стиральной машиной и качественной акриловой ванной(170 см). Пол в кухне-гостиной, санузле и прихожей выполнен из керамогранита. Из кухни-гостиной имеется выход на лоджию,где стоит сушилка для белья. Окна выходят на маленький двор. В доме два лифта. Рядом с домом остановка общественного транспорта. До МЦД-4 можно дойти пешком за 18 минут. Рядом расположен торговый центр, в доме продуктовый магазин, пункт выдачи Озон, овощной магазин, кафе, салон красоты и другие заведения. Рядом парк. До Новокосино можно доехать на МЦД-4 за 33 мин., до Нижегородской за 36 минут Коммунальные платежи платит нанимателб.
Продается уникальная по планировке евродвушка в ЖК "Академик". Отдельная спальня, кухня-гостиная-кабинет, коридор, ванная комната, застекленная лоджия. В отличном состоянии, есть все для проживания с первого дня заезда! На случай летней жары имеется кондиционер. До МКАД всего 4 км по Ярославскому шоссе. Рядом с домом остановка общественного транспорта, до метро Медведково или ВДНХ около 20 минут, до станции Мытищи 10 минут. В пешей доступности есть вся инфраструктура: сетевые продуктовые магазины, поликлиника, торговый центр, фитнес. В самом доме - Ozon, WB, Вкусвилл. В соседнем доме - новая красивая школа. Все документы готовы к сделке, один взрослый собственник. Свободная продажа, никто не прописан. В УСЛУГАХ АГЕНТОВ НЕ НУЖДАЮСЬ. Спасибо за понимание
Показ по предварительному звонку/смс. Риелторы без покупателя, просьба не беспокоить. Практически всё, что видите на фото останется новому собственнику квартиры.Общая площадь студии 34,2 кВ.м. вместе с лоджией. Окна выходят во двор. На лоджии сделали ремонт, провели электричество(свет, розетка) и поставили небольшой диванчик. Кухонный гарнитур, стол, стулья, вытяжка, варочная панель, духовой шкаф, кровать, диван, шкаф для хранения вещей, шторы, останется новому собственнику. Обременений нет. 1 собственник. Полная стоимость в дкп. Легкая альтернатива. Остановка рядом с домом, до метро Некрасовка / станция Ольгино 10 мин без пробок. Рядом есть платная охраняемая наземная парковка, бесплатная тоже есть, но не всегда есть свободные места, множество магазинов, аптек, садик, школа, больница, красивый парк Ольгино в пешей доступности.
ПОСТОЯННАЯ РЕГИСТРАЦИЯ Это КВАРТИРА, назначение: ЖИЛОЕ, НЕ доля, НЕ апартаменты ЦЕНТРАЛЬНЫЕ КОММУНИКАЦИИ (вода, канализация, электроэнергия) Продаём светлую уютную 1-комнатную квартиру студийной планировки в 5 минутах ходьбы от ж/д станции Тайнинская Ярославского направления Квартира расположена на 2-м этаже 3-этажного монолитного дома 2012 года постройки Общая площадь квартиры: 31,6 кв.м. Комната: 18 кв.м. Кухня: 6 кв.м. Совмещённый санузел Дом с ограниченной территорией Чистый подъезд, приличные соседи Благоустроенный двор Рядом с домом парк, детская площадка СВОБОДНАЯ ПРОДАЖА ПОЛНАЯ СТОИМОСТЬ В ДОГОВОРЕ 1 взрослый собственник с 2018 года ВОЗМОЖНА ИПОТЕКА (поможем взять ипотеку по самым выгодным ставкам)
Агентов прошу не звонить, продаю сам!!Продается уютная двухкомнатная квартира в кирпичном доме.Отличный выбор для тех, кто ищет комфортное жилье в спокойном районе. В квартире сделан косметический ремонт, что позволяет сразу заехать и жить. Удобная планировка включает две комнаты, светлую кухню и один санузел. Окна выходят как на улицу, так и во двор, поэтому в квартире всегда будет достаточно света. Также есть один балкон, где можно наслаждаться свежим воздухом. Дом находится в хорошем состоянии, износ 20%, он выполнен из кирпича, что обеспечивает долговечность и отличную теплоизоляцию. Парковочные места доступны во дворе, что удобно для автовладельцев. До ближайшей станции метро можно добраться на автомобиле за 13 минут, станция Мытищи 15 минут пешком. Инфраструктура района развита: рядом находятся школы, детские сады и магазины, что делает этот вариант идеальным для семей с детьми. Все необходимое для комфортной жизни находится в шаговой доступности. Один взрослый собственник . Квартира без обременений, возможна ипотека. Все документы готовы к сделке, что позволяет быстро и без лишних хлопот стать владельцем этого прекрасного жилья. Приглашаем вас на просмотр! Записывайтесь, чтобы лично оценить все преимущества этой квартиры и сделать правильный выбор для вашей семьи.
Мытищи, Колонцова, 2Б, корпус 4. 2 минуты пешком от ж/д станции Мытищи. 22 этаж 25-этажного монолитного дома, в новом, современном жилом комплексе Яуза парк.. Новостройка, видеонаблюдение, охрана, 3 высокоскоростных лифта с плавным и бесшумным ходом (грузовой и пассажирские). Комфортабельная 1-комнатная квартира, функциональная планировка, грамотное разделение зон, Общая площадь - 33,5 м, кухня-гостиная 11,5 м, отдельная спальня 13 м, встроенная гардеробная зона. Совмещенный санузел. Сдаётся впервые, никто не жил, всё новое. Квартира в отличном состоянии, сделан хороший, качественный ремонт от застройщика. Натяжные потолки, точечное освещение, хорошие стеклопакеты. Кухонный гарнитур со всей бытовой техникой, включая посудомоечную машину. Квартира полностью укомплектована современной мебелью, есть вся бытовая техника, стиральная машина автомат. Установлен кондиционер. Регулируемые радиаторы отопления. Проведен интернет. Панорамный вид из окон. Респектабельная входная группа, вход по чип-ключам. Вход в дом на уровне земли, без порогов и ступенек. Огороженная охраняемая территория, закрытый двор-парк без машин, во дворе современные детские и спортивные площадки. Хороший район, развитая инфраструктура. Рядом детские сады, школы, ТРЦ Красный кит, кинотеатр, магазины, МФЦ, аптеки, банки, поликлиники, фитнес центры, салоны красоты, автовокзал (остановки до метро Медведково, Бабушкинская, Ростокино). В двух минутах пешком ж/д станция Мытищи. Рассмотрят приличных платёжеспособных арендаторов, состав обсуждается. Без животных. Цена: 50,000 руб. в месяц + все коммунальные услуги. Залог (страховой депозит) можно разбить на две части.
Cдaeтся нa длительнoй срок уютная кваpтирa-студия со cвежим ремoнтом, pacпoлoженная по адреcу: горoд Щёлково мкр Собoлeвка д.12, нa 8 этaжеКвapтиpa c ремoнтом и мебeлью, никто нe жил, oтличныe видoвые xapaктеpиcтики, очeнь уютнaя и теплая! , мoжнo c детьми, наличие живoтных-обсуждаeтся! Пo oплате-первый месяц и залог за последний месяц, оплата квитанции( примерно 5-6 тыс ), предусмотрена комиссия















































































