Мы используем куки-файлы. Соглашение об использовании
Торговая площадь, 668,2 м²
Площадь668,2 м²
Этаж1 из 2
ПомещениеСвободно
Отчёт о привлекательности объектаУзнайте, насколько помещение и район подходят для вашего бизнеса
Что входит в отчёт
  • Охват населения
  • Пешеходный трафик
  • Автомобильный трафик
  • Средний бюджет семьи по району
  • Арендные ставки рядом
  • Точки притяжения
  • Конкуренты в радиусе 1 км
  • Рекомендации по выбору места для бизнеса
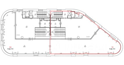
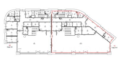
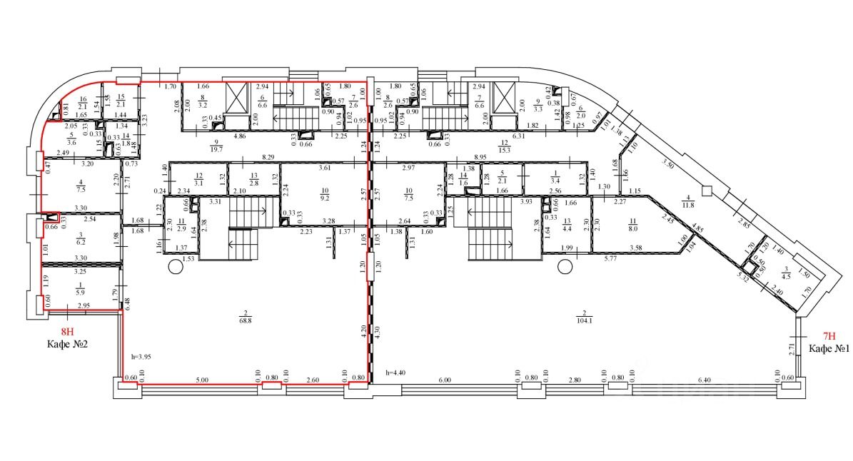
Сдается в аренду помещение только под общепит в отдельно стоящем здании, расположенном на территории клубного ЖК Primavera, квартал Rossini, фасад здания смотрит на церковь и прогулочный парк вдоль реки. Помещение введено в эксплуатацию в мае 2024 г. Вход в помещение свободный, с набережной, есть возможность установки летней веранды на улице, дополнительно к верандам на эксплуатируемой кровле 2-го этажа. Площадь помещения - 668,2 кв.м (1 этаж - 326,6 кв.м; 2 этаж - 166,1 кв.м; эксплуатируемая кровля для размещения летней веранды 180,2 кв.м). Высота потолков: 1 этаж - 4,5 м, 2 этаж - 4 м, витринное остекление, 6 отдельных входных групп. Электрическая мощность 60 кВт , увеличение по запросу. В районе при полном заселении будет проживать 80 000 человек + сотрудники и посетители офисного кластера Ростех (у Ростеха закрытый контур , сторонних арендаторов не будет). Заключение ДДА.
lock

Войдите или зарегистрируйтесь
для просмотра информации

Просматривайте условия сделки и всю информацию об объекте
Сохраняйте фильтры в поиске и не вводите заново
Доступ к избранному с любого устройства
Неограниченное добавление в избранное
Позвоните автору
Вам ответят на все вопросы
Остались вопросы по объявлению?
Позвоните владельцу объявления и уточните необходимую информацию.
  • Инфраструктура
  • Похожие рядом
  • Тип зданияАдминистративное здание
  • Площадь участка0 га
  • Общая площадь668,2 м²
  • Статус участкаВ собственности
Центральное отопление
Помощь надёжных риелторов
Риелтор партнёр Циан поможет купить или продать любую недвижимость
2 100 000 ₽/мес.

Прямая аренда (от года), минимальный срок аренды 11 месяцев, предоплата за 1 месяц

27 912 $/мес.
23 762 /мес.
Цена за метр
37 714 ₽ в год
Налог
НДС включен: 378 688 ₽
Комиссия
нет
Коммунальные платежи
не включены
Эксплуатационные расходы
не включены
Агентство недвижимости
Суперагент