Мы используем куки-файлы. Соглашение об использовании
Этаж11 из 12
Срок арендыОт 36 мес.
13 удобств включеныWi-Fi, высокоскоростной интернет, мебель...
Отчёт о привлекательности объектаУзнайте, насколько помещение и район подходят для вашего бизнеса
Что входит в отчёт
  • Охват населения
  • Пешеходный трафик
  • Автомобильный трафик
  • Средний бюджет семьи по району
  • Арендные ставки рядом
  • Точки притяжения
  • Конкуренты в радиусе 1 км
  • Рекомендации по выбору места для бизнеса
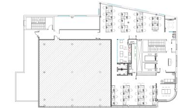
Сдаём ПОСЛЕДНИЕ готовые офисные блоки BUSINESS CLUB Газетный 17 на Тверской. Предлагаются два верхних изолированных этажа (10-11) с видом на исторический центр города единым лотом по специальной цене. Предлагаем меблированные, оснащенные и полностью готовые к въезду помещения, со всеми сервисами в договоре, в том числе: тех. эксплуатация, служба ресепшн, уборка, бронирование рабочих мест и переговорных, чай, кофе, вода, посуда, интернет (сеть wi-fi и Ethernet), коммунальные услуги. Дизайн отделки вдохновлен архитектурным модернизмом, интерьерами Ле Корбюзье и эстетикой школы Баухаус. В каждом офисном блоке, кроме рабочих мест: переговорные комнаты, кабинки для звонков, кофе-поинт, санузлы, ресепшн, серверные, мягкие зоны, гардеробы. Итого месячная стоимость аренды составит 6 366 036 руб. без учета НДС. Также есть возможность аренды отдельных этажей.
lock

Войдите или зарегистрируйтесь
для просмотра информации

Просматривайте условия сделки и всю информацию об объекте
Сохраняйте фильтры в поиске и не вводите заново
Доступ к избранному с любого устройства
Неограниченное добавление в избранное
Позвоните автору
Вам ответят на все вопросы
Остались вопросы по объявлению?
Позвоните владельцу объявления и уточните необходимую информацию.
  • Инфраструктура
  • Похожие рядом
Помощь надёжных риелторов
Риелтор партнёр Циан поможет купить или продать любую недвижимость
Оператор коворкинговBusiness Club
  • Документы проверены
  • 6 лет 2 месяца на Циане
  • 5 объявлений
  • 51 339 ₽/мес.
    за рабочее место
    Цена за весь офис
    6 366 036 ₽/мес.
    Коммунальные платежи
    включены
    Эксплуатационные расходы
    включены
    Оператор коворкинговBusiness Club
    Документы проверены