Мы используем куки-файлы. Соглашение об использовании
Помещение свободного назначения, 94 м²

Сдается помещение свободного назначения, 94 м²

Площадь94 м²
Этаж1 из 8
ПомещениеСвободно
Отчёт о привлекательности объектаУзнайте, насколько помещение и район подходят для вашего бизнеса
Что входит в отчёт
  • Охват населения
  • Пешеходный трафик
  • Автомобильный трафик
  • Средний бюджет семьи по району
  • Арендные ставки рядом
  • Точки притяжения
  • Конкуренты в радиусе 1 км
  • Рекомендации по выбору места для бизнеса
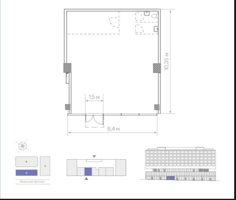
Сдаётся помещение свободного назначения в БЦ Lunar, ( корпус С) - ультра современного проекта премиум-класса. Здание расположено на первой линии Ленинского проспекта с отдельным входом с улицы! Большой трафик посетителей за счет местных жителей, работников и арендаторов, посетителей БЦ Lunar. Рядом с бизнес-центром расположены офисы Сбербанка и будущая штаб квартира Яндекс, кафе и популярные рестораны. Подходит под различные форматы бизнеса. С возможностью установки вывески на фасаде. Предоставляются арендные каникулы по согласованию с собственником. Близость к крупным транспортным узлам; Удобство доступа для автомобилистов и пассажиров общественного транспорта; Высокий пассажиропоток, обеспечивающий стабильный приток покупателей. Наличие остановок наземного транспорта значительно увеличивает охват целевой аудитории. Инфраструктура района Ленинский проспект традиционно воспринимается как один из наиболее престижных районов Москвы. Он отличается наличием множества образовательных учреждений, культурных заведений и медицинских центров, что способствует формированию устойчивого потока посетителей. Технические характеристики помещения: - отделка Shell&Core - помещение ровной, прямоугольной формы, без колонн - возможно открытие точки общепита / супермаркета - помещение подходит для стрит-ритейла - витрины хорошо просматриваются с Ленинского проспекта - витринное остекление 6 м; - помещение имеет отдельный вход; - возможность установки вывески на ф Низкая конкуренция Несмотря на свою популярность, район Ленинского проспекта испытывает недостаток качественных торговых площадей. Большая часть имеющихся помещений расположена в старом жилом фонде, что ограничивает возможности модернизации и адаптации под нужды современных арендаторов. Этот фактор создает уникальную возможность для владельцев недвижимости предлагать конкурентоспособные условия аренды и привлекать широкий круг арендаторов. Рост популярности формата street retail; Увеличение доли электронной коммерции; Повышение требований к качеству предоставляемых услуг и комфорту покупателей. Учитывая эти тенденции, можно предположить, что в ближайшие годы спрос на высококачественную торговую недвижимость продолжит расти. Особенно привлекательными будут объекты, расположенные в центральных районах с высокой проходимостью и удобной логистикой. Стоимость аренды 550.000 руб УСН. Коммунальные платежи по счетчикам. Прямой договор. Оперативный показ.
lock

Войдите или зарегистрируйтесь
для просмотра информации

Просматривайте условия сделки и всю информацию об объекте
Сохраняйте фильтры в поиске и не вводите заново
Доступ к избранному с любого устройства
Неограниченное добавление в избранное
Позвоните автору
Вам ответят на все вопросы
Остались вопросы по объявлению?
Позвоните владельцу объявления и уточните необходимую информацию.
  • Инфраструктура
  • Похожие рядом
  • Год постройки2023
  • Тип зданияБизнес-центр
  • Площадь участка0 га
  • Общая площадь94 м²
  • Статус участкаВ собственности
Приточная вентиляция
Центральное кондиционирование
Автономное отопление
Сигнализация
Помощь надёжных риелторов
Риелтор партнёр Циан поможет купить или продать любую недвижимость
550 000 ₽/мес.

Прямая аренда (от года), минимальный срок аренды 12 месяцев, доступны арендные каникулы, обеспечительный платёж 550000 ₽, предоплата за 1 месяц

7 251 $/мес.
6 162 /мес.
Цена за метр
70 213 ₽ в год
Налог
УСН
Комиссия
нет
Коммунальные платежи
не включены
Эксплуатационные расходы
не включены
Агентство недвижимости
ID 2002