Мы используем куки-файлы. Соглашение об использовании
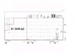
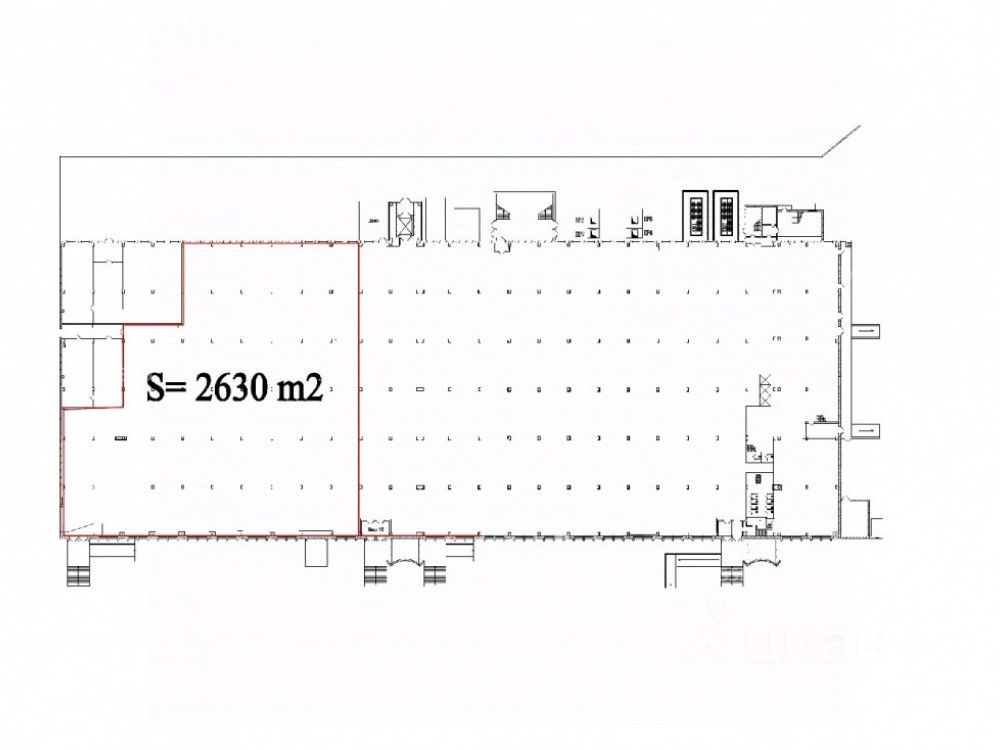
Помещение свободного назначения, 2 630 м²

Сдается помещение свободного назначения, 2 630 м²

Площадь2 630 м²
Этаж2 из 3
Отчёт о привлекательности объектаУзнайте, насколько помещение и район подходят для вашего бизнеса
Что входит в отчёт
  • Охват населения
  • Пешеходный трафик
  • Автомобильный трафик
  • Средний бюджет семьи по району
  • Арендные ставки рядом
  • Точки притяжения
  • Конкуренты в радиусе 1 км
  • Рекомендации по выбору места для бизнеса
Лот 22270. Аренда торгового помещения по адресу: Москва, Щелковское шоссе д. 100, в 5 минутах езды на транспорте от м. Щелковская. ТРЦ Щёлково находится в окружении большого жилого массива на границе двух крупных районов Восточное Измайлово и Гольяново. Рядом наземный и подземный пешеходные переходы. Остановки общественного транспорта. Отличная визуализация объекта и высокий рекламный потенциал. Торговое окружение: крупнейшие сетевые магазины федерального значения, такие как: гипермаркет Эльдорадо, Спотрмастер и другие крупные арендаторы, банки, кафе, развлекательные площадки, кинотеатр и зона фудкорта. Технические характеристики: Площадь помещения: 2600 кв.м., 2 этаж 3-х этажного здания ТЦ. Отдельный вход, отдельная зона для разгрузо-погрузочных работ. Центральные коммуникации, вентиляция. Планировка зальная, опен-спейс. Высота потолков до перекрытия 4.5 м до коммуникаций. Шаг колонн 12х18 м. Состояние помещения с хорошей отделкой и ремонтом, за выездом арендатора. Выделенная мощность электроэнергии предоставляется по запросу. Общий паркинг перед входом. Коммерческие условия: Ставка аренды в месяц- 3 900 000 руб. с НДС. Ставка за 1 кв.м в месяц - 1 500 руб. Коммунальные платежи оплачиваются отдельно по факту потребления. Прямая аренда. Возможен долгосрочный договор.
lock

Войдите или зарегистрируйтесь
для просмотра информации

Просматривайте условия сделки и всю информацию об объекте
Сохраняйте фильтры в поиске и не вводите заново
Доступ к избранному с любого устройства
Неограниченное добавление в избранное
Позвоните автору
Вам ответят на все вопросы
Остались вопросы по объявлению?
Позвоните владельцу объявления и уточните необходимую информацию.
  • Инфраструктура
  • Похожие рядом

Восточные ворота

  • Год постройки1969
  • Тип зданияТорговый центр
  • Категория зданияДействующее
  • Площадь участка0,21 га
  • Общая площадь8 558 м²
  • Масштаб торгового комплексаОкружной
Приточная вентиляция
Местное кондиционирование
Центральное отопление
Спринклерная система пожаротушения
Помощь надёжных риелторов
Риелтор партнёр Циан поможет купить или продать любую недвижимость
3 900 000 ₽/мес.
52 493 $/мес.
44 043 /мес.
Цена за метр
17 795 ₽ в год
Налог
НДС включен: 703 278 ₽
Комиссия
нет
Коммунальные платежи
не включены
Эксплуатационные расходы
не включены
Агентство недвижимости
Документы проверены
На Циан
9 лет
Объектов в работе
более 2000
Риелтор