Мы используем куки-файлы. Соглашение об использовании
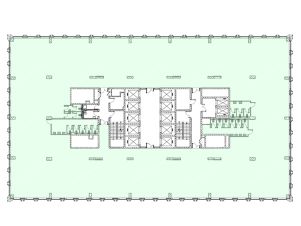
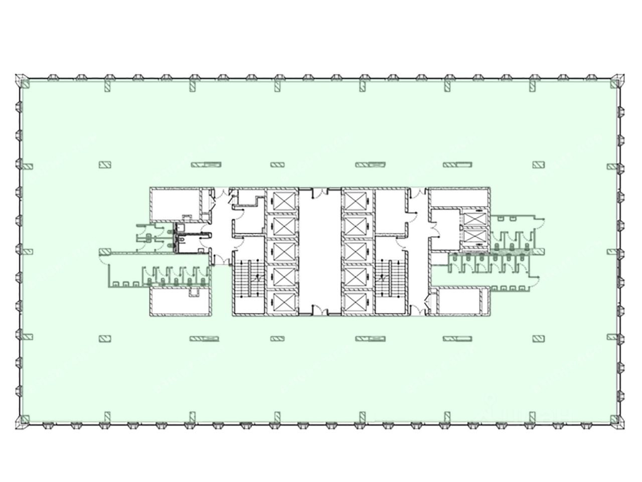
Площадь7 507,2 м²
Этаж1 из 23
Парковка120 мест
ПомещениеСвободно
КлассA
Отчёт о привлекательности объектаУзнайте, насколько помещение и район подходят для вашего бизнеса
Что входит в отчёт
  • Охват населения
  • Пешеходный трафик
  • Автомобильный трафик
  • Средний бюджет семьи по району
  • Арендные ставки рядом
  • Точки притяжения
  • Конкуренты в радиусе 1 км
  • Рекомендации по выбору места для бизнеса
Офисное помещение 7 507.2 кв. м в бизнес-центре "STONE Дмитровская". Объект на стадии активного строительства, готовность ко въезду уточняется по запросу. Округ: Северный (САО). Район: Тимирязевский. Ближайшие станции метро: Тимирязевская, Дмитровская. Характеристики: - Класс: A; - Разрешение на строительство: Да; - Арендопригодная площадь: 30500; - Код налоговой: 13; - Размер типового этажа: 1770; - Высота потолков: 3.65 м; - Наличие лифта: Есть; - Кол-во мест подземного паркинга: 120; - Шаг колонн: 8.4x8.4 м. Арендная ставка: 46 627.2 руб./кв. м в год. Финансовые условия: - В стоимость включено: НДС; - Оплачивается отдельно: OPEX, Интернет, Коммунальные услуги, Телефония, Уборка, Электроэнергия; - Налог: Включая НДС. Без комиссии и скрытых платежей для арендатора. Готовы оперативно организовать просмотр в удобное время, предоставить PDF-презентацию и план. Точное местоположение объекта можно найти по данным координатам: 55.808417,37.576070 ID = c_1785848
lock

Войдите или зарегистрируйтесь
для просмотра информации

Просматривайте условия сделки и всю информацию об объекте
Сохраняйте фильтры в поиске и не вводите заново
Доступ к избранному с любого устройства
Неограниченное добавление в избранное
Позвоните автору
Вам ответят на все вопросы
Остались вопросы по объявлению?
Позвоните владельцу объявления и уточните необходимую информацию.
  • Инфраструктура
  • Похожие рядом
Помощь надёжных риелторов
Риелтор партнёр Циан поможет купить или продать любую недвижимость
РиелторBright Rich Moscow
Суперагент
29 172 980 ₽/мес.

Прямая аренда (от года), минимальный срок аренды 11 месяцев, доступны арендные каникулы, предоплата за 1 месяц

382 602 $/мес.
327 281 /мес.
Цена за метр
46 632 ₽ в год
Налог
НДС включен: 5 255 040 ₽
Комиссия
нет
Коммунальные платежи
не включены
Эксплуатационные расходы
не включены
Агентство недвижимости
На Циан
12 лет
Объектов в работе
более 1000
Риелтор
Суперагент