Мы используем куки-файлы. Соглашение об использовании
Помещение свободного назначения, 245 м²

Сдается помещение свободного назначения, 245 м²

Площадь245 м²
Этаж1 из 8
ПомещениеСвободно
Отчёт о привлекательности объектаУзнайте, насколько помещение и район подходят для вашего бизнеса
Что входит в отчёт
  • Охват населения
  • Пешеходный трафик
  • Автомобильный трафик
  • Средний бюджет семьи по району
  • Арендные ставки рядом
  • Точки притяжения
  • Конкуренты в радиусе 1 км
  • Рекомендации по выбору места для бизнеса
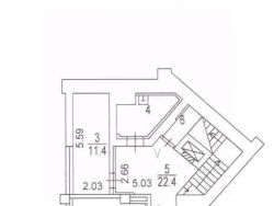
Лот 156561. Предлагается в Аренду Торговое помещение по Адресу: г. Москва, Смоленский бульвар, 1/2 Расположение: Садовое кольцо, высокая проходимость. Ваш бизнес будет в центре внимания. Первая линия. Помещение идеально подойдёт для любого бизнеса. Высокий автомобильный и пешеходный трафик. Новый отель Maidens 5* через дорогу. Ближайшие станции метро: Парк культуры и Смоленская, в шаговой доступности. Торговое соседство: ВкусВилл ,Магнолия, SimpllWine Технические характеристики: Общая Площадь: 245 кв.м. 1 -этаж - 177м2 Цокольный этаж - 68м2 Угловое помещение. Отдельный вход с улицы и двора Высота потолков 3 м Витринное остекление. Электрическая мощность 50 кВт Наземный паркинг. Коммерческие условия: Стоимость аренды - 1 000 000 рублей Стоимость кв.м. - 4 081 рублей/месяц
lock

Войдите или зарегистрируйтесь
для просмотра информации

Просматривайте условия сделки и всю информацию об объекте
Сохраняйте фильтры в поиске и не вводите заново
Доступ к избранному с любого устройства
Неограниченное добавление в избранное
Позвоните автору
Вам ответят на все вопросы
Остались вопросы по объявлению?
Позвоните владельцу объявления и уточните необходимую информацию.
  • Инфраструктура
  • Похожие рядом
  • Общая площадь245 м²
Помощь надёжных риелторов
Риелтор партнёр Циан поможет купить или продать любую недвижимость
1 000 000 ₽/мес.
13 292 $/мес.
11 270 /мес.
Цена за метр
48 980 ₽ в год
Налог
УСН
Комиссия
нет
Коммунальные платежи
не включены
Эксплуатационные расходы
не включены
Агентство недвижимости
Документы проверены
На Циан
9 лет
Объектов в работе
более 2000
Риелтор