Мы используем куки-файлы. Соглашение об использовании
Помещение свободного назначения, 329 м²

Сдается помещение свободного назначения, 329 м²

Площадь329 м²
Этаж1 из 5
Отчёт о привлекательности объектаУзнайте, насколько помещение и район подходят для вашего бизнеса
Что входит в отчёт
  • Охват населения
  • Пешеходный трафик
  • Автомобильный трафик
  • Средний бюджет семьи по району
  • Арендные ставки рядом
  • Точки притяжения
  • Конкуренты в радиусе 1 км
  • Рекомендации по выбору места для бизнеса
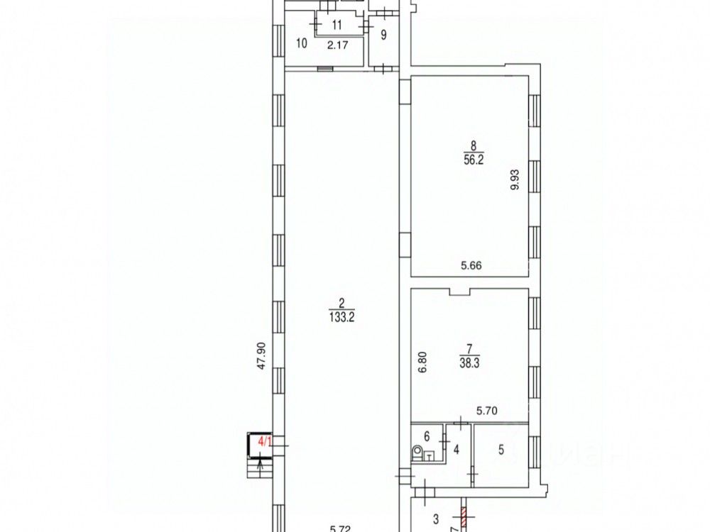
Лот 156562. Предлагается в Аренду Торговое помещение по Адресу: г. Москва, ул Талалихина 39 Расположение: Первая линия. Удобный доступ к общественному транспорту Помещение идеально подойдёт для любого бизнеса. Высокий автомобильный и пешеходный трафик. Технические характеристики: Общая Площадь: 329.7 кв.м. Отдельный вход с улице и двораВысота потолков 3 мВитринное остекление.Электрическая мощность 40 кВтНаземный паркинг Коммерческие условия: Стоимость Аренды - 790 000 рублей Стоимость кв.м. - 2 401 рублей/месяц
lock

Войдите или зарегистрируйтесь
для просмотра информации

Просматривайте условия сделки и всю информацию об объекте
Сохраняйте фильтры в поиске и не вводите заново
Доступ к избранному с любого устройства
Неограниченное добавление в избранное
Позвоните автору
Вам ответят на все вопросы
Остались вопросы по объявлению?
Позвоните владельцу объявления и уточните необходимую информацию.
  • Инфраструктура
  • Похожие рядом
  • Общая площадь329 м²
Помощь надёжных риелторов
Риелтор партнёр Циан поможет купить или продать любую недвижимость
790 000 ₽/мес.
10 801 $/мес.
9 155 /мес.
Цена за метр
28 815 ₽ в год
Налог
УСН
Комиссия
нет
Коммунальные платежи
не включены
Эксплуатационные расходы
не включены
Агентство недвижимости
Документы проверены
На Циан
9 лет
Объектов в работе
более 2000
Риелтор