Мы используем куки-файлы. Соглашение об использовании

Сдается торговая площадь, 236 м²

Площадь236 м²
Этаж1 из 1
ПомещениеСвободно
Отчёт о привлекательности объектаУзнайте, насколько помещение и район подходят для вашего бизнеса
Что входит в отчёт
  • Охват населения
  • Пешеходный трафик
  • Автомобильный трафик
  • Средний бюджет семьи по району
  • Арендные ставки рядом
  • Точки притяжения
  • Конкуренты в радиусе 1 км
  • Рекомендации по выбору места для бизнеса
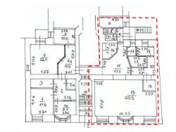
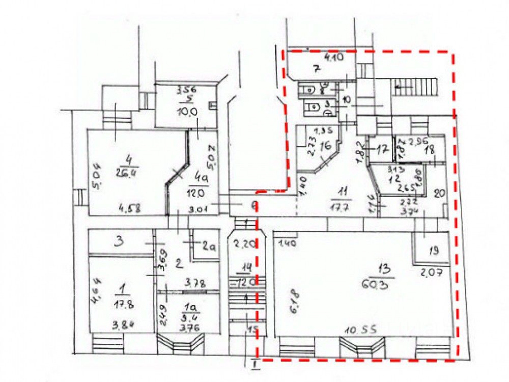
Лот 139844. Предлагается в аренду помещение свободного назначения в историческом центре Москвы ЦАО, первая линия по адресу: Садовая- Кудринская, д.19 стр.1. Фасадный дом на 1-й линии , отдельный вход , 10 минут пешком от метро "Маяковская". Торговое окружение: Hartwell Hotel, Салон Красоты "Dessange", Салон Красоты "Персона", Технические параметры: 1 этаж 6-и этажного жилого дома, общей площадью 236 м2. Два входа, с первой линии и со двора, зальная планировка, высота потолков 3.3 м. Городские коммуникации. Выделенная мощность - 48 кВт. Состояние помещения: за выездом банка. Есть одно парковочное место. Коммерческие условия: Стоимость объекта: 1 100 000 рублей, в т.ч. НДС Стоимость объекта за м2: 4 661 рублей, в т.ч. НДС
lock

Войдите или зарегистрируйтесь
для просмотра информации

Просматривайте условия сделки и всю информацию об объекте
Сохраняйте фильтры в поиске и не вводите заново
Доступ к избранному с любого устройства
Неограниченное добавление в избранное
Позвоните автору
Вам ответят на все вопросы
Остались вопросы по объявлению?
Позвоните владельцу объявления и уточните необходимую информацию.
  • Инфраструктура
  • Похожие рядом
  • Общая площадь236 м²
Помощь надёжных риелторов
Риелтор партнёр Циан поможет купить или продать любую недвижимость
1 100 000 ₽/мес.
14 620 $/мес.
12 447 /мес.
Цена за метр
55 933 ₽ в год
Налог
НДС включен: 198 360 ₽
Комиссия
нет
Коммунальные платежи
не включены
Эксплуатационные расходы
не включены
Агентство недвижимости
Документы проверены
На Циан
9 лет
Объектов в работе
более 2000
Риелтор