Мы используем куки-файлы. Соглашение об использовании

Сдается здание (C)

Площадь971,7 м²
Этажность1
КлассC
Отчёт о привлекательности объектаУзнайте, насколько помещение и район подходят для вашего бизнеса
Что входит в отчёт
  • Охват населения
  • Пешеходный трафик
  • Автомобильный трафик
  • Средний бюджет семьи по району
  • Арендные ставки рядом
  • Точки притяжения
  • Конкуренты в радиусе 1 км
  • Рекомендации по выбору места для бизнеса
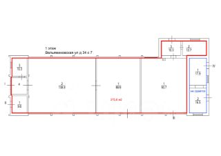
Сдается функциональный офисно-складской производственный комплекс с отдельным заездом с улицы Ткацкая ( ориентир дом 12). Три отдельных здания, строения 7-8-9 ( см на карту и поэтажные планы) объединенных одним двором. Строение 7кирпичное здание с двускатной крышей ( есть покрасочная кабина с вентиляцией) -375,8 метров, можно использовать под производство, электричество- 50 КВ, нагрузка на пол- мах. К этому зданию пристройка -75 метров, отапливаемая. Строение 8. Холодный склад-ангар -250 метров ( строение 8), площади под производство- с возможностью отопления- 113,9 метров. Строение 9. Отдельно стоящее кирпичное офисное здание- 137 метров. Двор отдельный, со своим въездом с улицы, отдельные ворота. Вниманию тех, кто смотрит это объявление. Комиссия агентства- 50% от месячной аренды. Помещение требует ремонта, будем готовы предоставить арендные каникулы. Организуем оперативный показ. Звоните!
lock

Войдите или зарегистрируйтесь
для просмотра информации

Просматривайте условия сделки и всю информацию об объекте
Сохраняйте фильтры в поиске и не вводите заново
Доступ к избранному с любого устройства
Неограниченное добавление в избранное
Позвоните автору
Вам ответят на все вопросы
Остались вопросы по объявлению?
Позвоните владельцу объявления и уточните необходимую информацию.
  • Инфраструктура
  • Похожие рядом
Помощь надёжных риелторов
Риелтор партнёр Циан поможет купить или продать любую недвижимость
872 142 ₽/мес.

Прямая аренда (от года), доступны арендные каникулы, обеспечительный платёж 872142 ₽, предоплата за 1 месяц

11 467 $/мес.
9 731 /мес.
Цена за метр
10 771 ₽ в год
Налог
НДС включен: 157 271 ₽
Комиссия
50%
Коммунальные платежи
включены
Эксплуатационные расходы
включены
Агентство недвижимости
Документы проверены
3,3・9