Мы используем куки-файлы. Соглашение об использовании
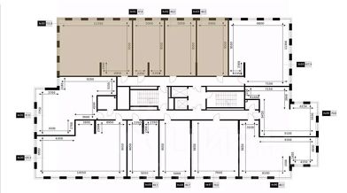
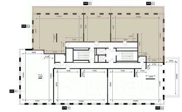
Площадь1 057 м²
Этаж8 из 9
ПомещениеСвободно
КлассA
Отчёт о привлекательности объектаУзнайте, насколько помещение и район подходят для вашего бизнеса
Что входит в отчёт
  • Охват населения
  • Пешеходный трафик
  • Автомобильный трафик
  • Средний бюджет семьи по району
  • Арендные ставки рядом
  • Точки притяжения
  • Конкуренты в радиусе 1 км
  • Рекомендации по выбору места для бизнеса
АГЕНТАМ ПЛАТИМ. РЕНТАВИК— участник ассоциации агентств КОКОН. Премиальный бизнес-центр FILI RESIDENCE расположен в районе Филевский парк в ближайшей доступности к нескольким станциям метро и ключевым административно-деловым центрам. Налоговая: 30. Лифты: Есть. Вентиляция: Приточно-вытяжная. Кондиционирование: Центральное. Безопасность: Круглосуточная охрана, Контроль доступа, Система пожаротушений, Видеонаблюдение. Парковка: Подземная, Наземная. Описание помещения: 8 этаж - 257,9 м2. 9 этаж полностью - 799 м2, есть своя веранда. Выполнена качественная офисная отделка. Готовность - 3 месяца. Планировка: кабинетная. Офисная отделка. Терраса/балкон. Тип налогообложения: УСН. Лот 85046-87
lock

Войдите или зарегистрируйтесь
для просмотра информации

Просматривайте условия сделки и всю информацию об объекте
Сохраняйте фильтры в поиске и не вводите заново
Доступ к избранному с любого устройства
Неограниченное добавление в избранное
Позвоните автору
Вам ответят на все вопросы
Остались вопросы по объявлению?
Позвоните владельцу объявления и уточните необходимую информацию.
  • Инфраструктура
  • Похожие рядом
Помощь надёжных риелторов
Риелтор партнёр Циан поможет купить или продать любую недвижимость
6 764 800 ₽/мес.

Прямая аренда (от года)

90 396 $/мес.
77 289 /мес.
Цена за метр
76 800 ₽ в год
Налог
УСН
Комиссия
нет
Коммунальные платежи
не включены
Эксплуатационные расходы
включены
Агентство недвижимости
Риелтор
Суперагент