Мы используем куки-файлы. Соглашение об использовании
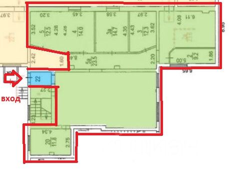
Помещение свободного назначения, 182 м²

Сдается помещение свободного назначения, 182 м²

Площадь182 м²
Этаж1 из 1
ПомещениеСвободно
Отчёт о привлекательности объектаУзнайте, насколько помещение и район подходят для вашего бизнеса
Что входит в отчёт
  • Охват населения
  • Пешеходный трафик
  • Автомобильный трафик
  • Средний бюджет семьи по району
  • Арендные ставки рядом
  • Точки притяжения
  • Конкуренты в радиусе 1 км
  • Рекомендации по выбору места для бизнеса
СОБСТВЕННИК физ.лицо АРЕНДА от СОБСТВЕННИКА. Помещение 182м2. 1-й этаж. Отдельный вход. Доступ 24\7. Свободная планировка. Ремонт типовой. Арендные каникулы обсуждаются. Бесплатная парковка. Высота потолков 2.8м Электричество 20кВт. Стоимость помещения 260 тыс .рублей.КУ оплачиваются отдельно. Страховой депозит 260тыс.рублей.
lock

Войдите или зарегистрируйтесь
для просмотра информации

Просматривайте условия сделки и всю информацию об объекте
Сохраняйте фильтры в поиске и не вводите заново
Доступ к избранному с любого устройства
Неограниченное добавление в избранное
Позвоните автору
Вам ответят на все вопросы
Остались вопросы по объявлению?
Позвоните владельцу объявления и уточните необходимую информацию.
  • Инфраструктура
  • Похожие рядом
  • Общая площадь182 м²
Естественная вентиляция
Местное кондиционирование
Центральное отопление
Сигнализация
Помощь надёжных риелторов
Риелтор партнёр Циан поможет купить или продать любую недвижимость
РиелторКсения Иванова
Суперагент
  • 2,8・5
  • 7 лет 5 месяцев на Циане
  • 25 объявлений
  • 260 000 ₽/мес.

    Прямая аренда (от года), минимальный срок аренды 11 месяцев, доступны арендные каникулы, обеспечительный платёж 300000 ₽, предоплата за 1 месяц

    3 467 $/мес.
    2 955 /мес.
    Цена за метр
    17 143 ₽ в год
    Налог
    УСН
    Комиссия
    нет
    Коммунальные платежи
    не включены
    Эксплуатационные расходы
    включены
    РиелторКсения Иванова
    Суперагент