Мы используем куки-файлы. Соглашение об использовании
Площадь1 471 м²
Этаж2 из 6
Парковка15 мест
КлассB
Отчёт о привлекательности объектаУзнайте, насколько помещение и район подходят для вашего бизнеса
Что входит в отчёт
  • Охват населения
  • Пешеходный трафик
  • Автомобильный трафик
  • Средний бюджет семьи по району
  • Арендные ставки рядом
  • Точки притяжения
  • Конкуренты в радиусе 1 км
  • Рекомендации по выбору места для бизнеса
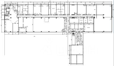
Офисный блок 1470 кв.м. со смешанной планировкой. Презентабельная, удобная входная группа, лифты. Планировку смотрите на схеме, возможно изменения под Ваши задачи. Блок одним этажом, что достаточно удобно для размещения крупной компании. Провайдеры Авантел, Наукасвязь, Первый телеком, Мегафон. При необходимости оставим мебель Юрадрес по 9 налоговой, прямой договор от собственника без комиссий. Звоните, про паркинг, клининг, возможности для ведения бизнеса, особенности и преимущества бизнес кластера расскажем, менеджер постоянно на месте в соседнем корпусе.
lock

Войдите или зарегистрируйтесь
для просмотра информации

Просматривайте условия сделки и всю информацию об объекте
Сохраняйте фильтры в поиске и не вводите заново
Доступ к избранному с любого устройства
Неограниченное добавление в избранное
Позвоните автору
Вам ответят на все вопросы
Остались вопросы по объявлению?
Позвоните владельцу объявления и уточните необходимую информацию.
  • Инфраструктура
  • Похожие рядом
Помощь надёжных риелторов
Риелтор партнёр Циан поможет купить или продать любую недвижимость
4 045 250 ₽/мес.
56 742 $/мес.
48 863 /мес.
Цена за метр
33 000 ₽ в год
Налог
НДС включен: 728 145 ₽
Комиссия
нет
Коммунальные платежи
не включены
Эксплуатационные расходы
не включены
Агентство недвижимости
Документы проверены