Мы используем куки-файлы. Соглашение об использовании
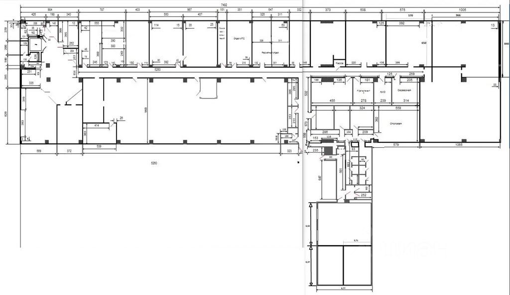
Площадь350 м²
Этаж2 из 6
Парковка15 мест
ПомещениеСвободно
КлассB
Отчёт о привлекательности объектаУзнайте, насколько помещение и район подходят для вашего бизнеса
Что входит в отчёт
  • Охват населения
  • Пешеходный трафик
  • Автомобильный трафик
  • Средний бюджет семьи по району
  • Арендные ставки рядом
  • Точки притяжения
  • Конкуренты в радиусе 1 км
  • Рекомендации по выбору места для бизнеса
Офисный блок 350 кв.м. со смешанной планировкой. 2 минуты от метро Пролетрская/Крестьянская застава , 8 минут от метро Марксисткая/Таганская Презентабельная, удобная входная группа, лифты. Провайдеры Авантел, Наукасвязь, Первый телеком, Мегафон. На первом этаже можем выделить помещение в дата центре для размещения серверных стоек. Юрадрес по 9 налоговой, прямой договор от собственника без комиссий. Звоните, про паркинг, клининг, возможности для ведения бизнеса, особенности и преимущества бизнес кластера расскажем, менеджер постоянно на месте в соседнем корпусе.
lock

Войдите или зарегистрируйтесь
для просмотра информации

Просматривайте условия сделки и всю информацию об объекте
Сохраняйте фильтры в поиске и не вводите заново
Доступ к избранному с любого устройства
Неограниченное добавление в избранное
Позвоните автору
Вам ответят на все вопросы
Остались вопросы по объявлению?
Позвоните владельцу объявления и уточните необходимую информацию.
  • Инфраструктура
  • Похожие рядом
Помощь надёжных риелторов
Риелтор партнёр Циан поможет купить или продать любую недвижимость
1 050 000 ₽/мес.
13 806 $/мес.
11 715 /мес.
Цена за метр
36 000 ₽ в год
Налог
НДС включен: 189 000 ₽
Комиссия
нет
Коммунальные платежи
не включены
Эксплуатационные расходы
включены
Агентство недвижимости
Документы проверены