Мы используем куки-файлы. Соглашение об использовании
Помещение свободного назначения, 283,5 м²

Сдается помещение свободного назначения, 283,5 м²

Площадь283,5 м²
Этаж2 из 8
Отчёт о привлекательности объектаУзнайте, насколько помещение и район подходят для вашего бизнеса
Что входит в отчёт
  • Охват населения
  • Пешеходный трафик
  • Автомобильный трафик
  • Средний бюджет семьи по району
  • Арендные ставки рядом
  • Точки притяжения
  • Конкуренты в радиусе 1 км
  • Рекомендации по выбору места для бизнеса
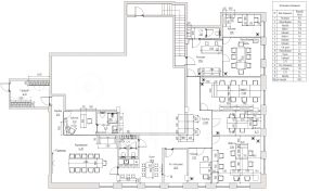
Добрый день, уважаемые арендаторы! Вашему вниманию предлагается уникальное предложение! Объект в бетоне. Стены эргономично возведены, выведены коммуникации водоснабжения и водоотведения. Подключено 50 кВт. Продуманы зоны для вывода системы кондиционирования. Потолки 3 метра. Дизайн-проект готов под реализацию офисного пространства. Прикладываю общий план. Три отдельных собственных входа в помещение: со стороны улицы (въезда в паркинг), напрямую с внутреннего паркинга и с зоны ресепшена бизнес-центра. Возможна реализация проекта общепита/кальянной/офиса. Даем объективные арендные каникулы для эффективной реализации проекта. Помещение готово к просмотру. Стоимость с НДС. Только долгосрочный договор с четкими условиями взаимодействия.
lock

Войдите или зарегистрируйтесь
для просмотра информации

Просматривайте условия сделки и всю информацию об объекте
Сохраняйте фильтры в поиске и не вводите заново
Доступ к избранному с любого устройства
Неограниченное добавление в избранное
Позвоните автору
Вам ответят на все вопросы
Остались вопросы по объявлению?
Позвоните владельцу объявления и уточните необходимую информацию.
  • Инфраструктура
  • Похожие рядом
  • Тип зданияБизнес-центр
  • Общая площадь283,5 м²
Естественная вентиляция
Местное кондиционирование
Центральное отопление
Гидрантная система пожаротушения
Помощь надёжных риелторов
Риелтор партнёр Циан поможет купить или продать любую недвижимость
580 000 ₽/мес.

Прямая аренда (от года), минимальный срок аренды 11 месяцев, доступны арендные каникулы, обеспечительный платёж 750000 ₽, предоплата за 1 месяц

8 145 $/мес.
7 027 /мес.
Цена за метр
24 551 ₽ в год
Налог
НДС включен: 104 590 ₽
Комиссия
50%
Коммунальные платежи
включены
Эксплуатационные расходы
не включены
Агентство недвижимости
Риелтор
Суперагент
4,8・16