Мы используем куки-файлы. Соглашение об использовании

Продается коммерческая земля, 5,68 сот.

Площадь участка5,68 сот.
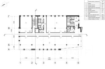
ПРОДАЖА ЗЕМЕЛЬНОГО УЧАСТКА 77:02:0008009:78 кадастровый номер 568 кв м площадь участка 49 лет аренда ЗУ ВРИ ЗУ - 3.10.1, 4.0.0, 4.1.0, 4.2.0, 4.3.0, 4.4.0, 4.5.0, 4.6.0, 4.8.0, 4.9.0, 4.9.1.1, 4.9.1.3, 4.9.1.4, 4.10.0 наличие адреса - Москва, ул. Олонецкая, вл.19 (перекресток улиц Олонецкая и Отрадная) Готовый проект возведение ТЦ предусматривает: 4 этажа с эксплуатируемой кровлей + цоколь 2000 кв м площадь здания 350 кв м встроенная антресоль на 1м этаже Градостроительная проработка: - наличие ГПЗУ - Электричество - 150 кВт - Отопление - получено ТУ - Водоснабжение и канализация - получены ТУ Tpанспopтнaя доступнoсть: м. Бoтaничecкий caд - 1,7 км м. Отраднoe - 1,8 км м. Bлaдыкинo - 1,3 км Раcположениe: район интенсивной жилoй застрoйки, зacтpoйщик ПИK, знaчитeльнaя чаcть ужe сдана в эксплуатацию, население района 170 тыс. чел.
lock

Войдите или зарегистрируйтесь
для просмотра информации

Просматривайте условия сделки и всю информацию об объекте
Сохраняйте фильтры в поиске и не вводите заново
Доступ к избранному с любого устройства
Неограниченное добавление в избранное
Позвоните автору
Вам ответят на все вопросы
Остались вопросы по объявлению?
Позвоните владельцу объявления и уточните необходимую информацию.
  • Инфраструктура
  • Похожие рядом
Помощь надёжных риелторов
Риелтор партнёр Циан поможет купить или продать любую недвижимость
Управляющая компанияГК LER GROUP
Суперагент
  • 13 лет 1 месяц на Циане
  • 20 объявлений
  • 69 000 000 ₽
    921 467 $
    786 083
    Цена за сотку
    12 147 888 ₽
    Налог
    УСН
    Управляющая компанияГК LER GROUP
    Суперагент