Мы используем куки-файлы. Соглашение об использовании
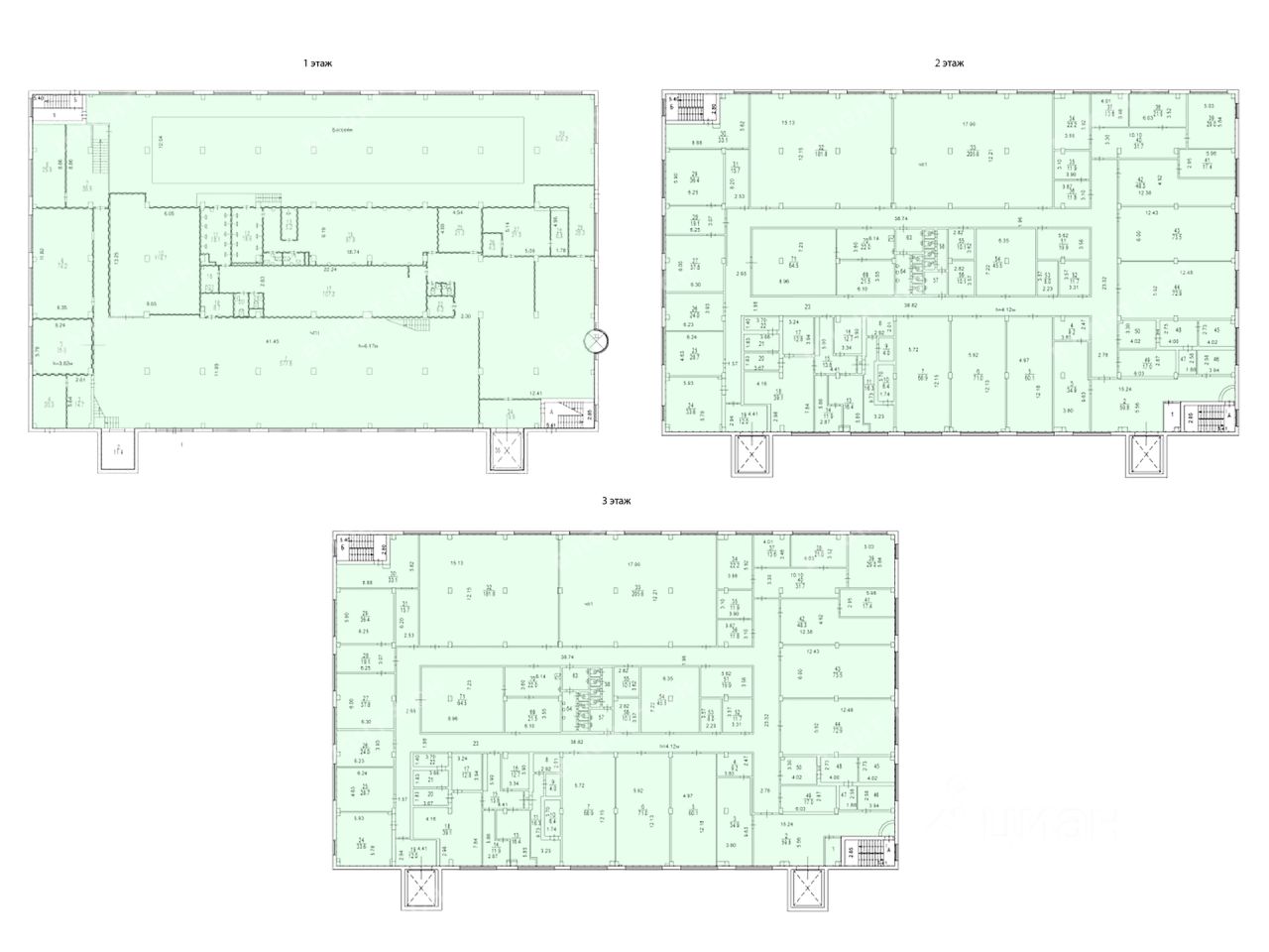
Площадь6 899,8 м²
Этаж1 из 3
Парковка2000 мест
КлассB
Отчёт о привлекательности объектаУзнайте, насколько помещение и район подходят для вашего бизнеса
Что входит в отчёт
  • Охват населения
  • Пешеходный трафик
  • Автомобильный трафик
  • Средний бюджет семьи по району
  • Арендные ставки рядом
  • Точки притяжения
  • Конкуренты в радиусе 1 км
  • Рекомендации по выбору места для бизнеса
Офисное помещение 6 899.8 кв. м в бизнес-центре "На Ленинской Слободе 26с3". Прямая продажа, без комиссии. Округ: Южный (ЮАО). Район: Даниловский. Характеристики: - Класс: B+; - Арендопригодная площадь: 5864.8; - Код налоговой: 25. Стоимость: 2 525 034 000 руб. Финансовые условия: - В стоимость включено: НДС; - Налог: Включая НДС. Оформление сделки напрямую от собственника, без комиссии. Готовы оперативно организовать просмотр в удобное время, предоставить PDF-презентацию и план. Точное местоположение объекта можно найти по данным координатам: 55.711533,37.655828 ID = c_1155319
lock

Войдите или зарегистрируйтесь
для просмотра информации

Просматривайте условия сделки и всю информацию об объекте
Сохраняйте фильтры в поиске и не вводите заново
Доступ к избранному с любого устройства
Неограниченное добавление в избранное
Позвоните автору
Вам ответят на все вопросы
Остались вопросы по объявлению?
Позвоните владельцу объявления и уточните необходимую информацию.
  • Инфраструктура
  • Похожие рядом
Помощь надёжных риелторов
Риелтор партнёр Циан поможет купить или продать любую недвижимость
РиелторBright Rich Moscow
Суперагент
2 525 034 000 ₽
35 613 417 $
30 524 187
Цена за метр
365 958 ₽
Налог
НДС включен: 455 334 000 ₽
Агентство недвижимости
На Циан
12 лет
Объектов в работе
более 1000
Риелтор
Суперагент