Мы используем куки-файлы. Соглашение об использовании

Единственный VIP-офис-этаж в БЦ!

Площадь975,4 м²
Этаж7 из 7
Парковка250 мест
ПомещениеСвободно
КлассB+
Отчёт о привлекательности объектаУзнайте, насколько помещение и район подходят для вашего бизнеса
Что входит в отчёт
  • Охват населения
  • Пешеходный трафик
  • Автомобильный трафик
  • Средний бюджет семьи по району
  • Арендные ставки рядом
  • Точки притяжения
  • Конкуренты в радиусе 1 км
  • Рекомендации по выбору места для бизнеса
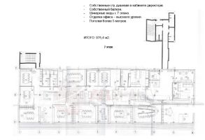
Продажа от собственника! В ЗАО в БЦ Виктори Парк Плаза продается VIP-офисный этаж. Класс А. Локация, р-н Раменки: 7 мин. пешком от м. Минская. Здание в стиле хай-тек. Панорамное остекление. 7 этаж целиком площадью 975,4 кв.м с собственным балконом. Панорамный этаж с видом на природный заказник. Блок с кухней, со своими с/у и душевой в кабинете руководителя. Качественная офисная отделка. Высокие потолки более 5 м. Дополнительно о БЦ: - Стильная входная группа - Центральный ресепшн - Современные инженерные коммуникации - Приточно-вытяжная вентиляция и центральное кондиционирование - Круглосуточная охрана и видеонаблюдение, пропускная система - Наземный охраняемый паркинг Цена продажи указана с НДС. Звоните и записывайтесь на просмотр, оперативный показ!
lock

Войдите или зарегистрируйтесь
для просмотра информации

Просматривайте условия сделки и всю информацию об объекте
Сохраняйте фильтры в поиске и не вводите заново
Доступ к избранному с любого устройства
Неограниченное добавление в избранное
Позвоните автору
Вам ответят на все вопросы
Остались вопросы по объявлению?
Позвоните владельцу объявления и уточните необходимую информацию.
  • Инфраструктура
  • Похожие рядом
Помощь надёжных риелторов
Риелтор партнёр Циан поможет купить или продать любую недвижимость
Агентство недвижимости
Суперагент
512 085 000 ₽
6 865 359 $
5 834 670
Цена за метр
525 000 ₽
Налог
НДС включен: 92 343 196 ₽
Агентство недвижимости
Суперагент
На Циан
11 лет
Объектов в работе
более 1000