Мы используем куки-файлы. Соглашение об использовании
Площадь386 м²
Этаж1
Прибыль405 000 ₽/мес.
КатегорияТорговая площадь
Отчёт о привлекательности объектаУзнайте, насколько помещение и район подходят для вашего бизнеса
Что входит в отчёт
  • Охват населения
  • Пешеходный трафик
  • Автомобильный трафик
  • Средний бюджет семьи по району
  • Арендные ставки рядом
  • Точки притяжения
  • Конкуренты в радиусе 1 км
  • Рекомендации по выбору места для бизнеса
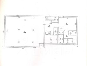
От Максима всегда максимально доходные и ликвидные объекты арендного бизнеса в Москве и Московской области. Предлагаю Вашему вниманию торговое здание общей площадью 386 м² с надёжнейшим "Дикси" - готовый арендный бизнес с окупаемостью 7,5 лет. Арендатор - сетевой продуктовый супермаркет "Дикси" (долгосрочный договор аренды до сентября 2029 года). Арендный поток составляет 405 000 рублей в месяц. УСН. Здание располагается на первой линии домов рядом с остановкой общественного транспорта и железнодорожной станцией, в центре густонаселённого жилого района. Интенсивный автомобильный и пешеходный трафик. Земельный участок 665 м2 в собственности. Имеется парковка перед фасадом. Зальная планировка, отдельный вход с фасада и со двора. Высота потолка 3,2 м., есть места для размещения рекламных вывесок. Коммуникации: газовое отопление, холодное водоснабжение, центральное водоотведение. Электрическая мощность 58 кВт.
lock

Войдите или зарегистрируйтесь
для просмотра информации

Просматривайте условия сделки и всю информацию об объекте
Сохраняйте фильтры в поиске и не вводите заново
Доступ к избранному с любого устройства
Неограниченное добавление в избранное
Позвоните автору
Вам ответят на все вопросы
Остались вопросы по объявлению?
Позвоните владельцу объявления и уточните необходимую информацию.
  • Инфраструктура
  • Похожие рядом
Помощь надёжных риелторов
Риелтор партнёр Циан поможет купить или продать любую недвижимость
РиелторМаксим Стеблин
Суперагент
  • 4,3・101
  • 1 год 3 месяца на Циане
  • 108 объявлений
  • 38 000 000 ₽
    505 154 $
    431 524
    Цена за метр
    98 446 ₽
    Налог
    УСН
    РиелторМаксим Стеблин
    Суперагент