Мы используем куки-файлы. Соглашение об использовании
Помещение свободного назначения, 191 м²

Продается помещение свободного назначения, 191 м²

Площадь191 м²
Этаж-1 из 28
Отчёт о привлекательности объектаУзнайте, насколько помещение и район подходят для вашего бизнеса
Что входит в отчёт
  • Охват населения
  • Пешеходный трафик
  • Автомобильный трафик
  • Средний бюджет семьи по району
  • Арендные ставки рядом
  • Точки притяжения
  • Конкуренты в радиусе 1 км
  • Рекомендации по выбору места для бизнеса
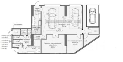
Предлагается для продажи помещение автомойки в ЖК Бизнес Класса "Достижение". Большой и престижный ЖК , а значит премиальные автомобили и клиенты. В доме 3100 жителей , 1214 квартир. В доме находится двухэтажный охраняемый подземный паркинг на 830 машино-мест. Помещение Автомойки располагается на -1 этаже и имеет удобный заезд и удачное расположение. Есть возможность организации круглосуточной работы. Характеристика помещения : - 191 кв.м + 2 келлера ( 6. 1 м и 3.3 м входят в стоимость) - 2 мокрые точки - 2 поста автомойки и 1 пост для детейлинга - мощность 23 кВт. - высота потолков 5.5 м. Есть возможность увеличения площади автомойки . Отдельно в продаже 6 машиномест Звоните для более подробной информации и организации просмотра .
lock

Войдите или зарегистрируйтесь
для просмотра информации

Просматривайте условия сделки и всю информацию об объекте
Сохраняйте фильтры в поиске и не вводите заново
Доступ к избранному с любого устройства
Неограниченное добавление в избранное
Позвоните автору
Вам ответят на все вопросы
Остались вопросы по объявлению?
Позвоните владельцу объявления и уточните необходимую информацию.
  • Инфраструктура
  • Похожие рядом
  • Общая площадь191 м²
Приточная вентиляция
Центральное кондиционирование
Центральное отопление
Помощь надёжных риелторов
Риелтор партнёр Циан поможет купить или продать любую недвижимость
Автор объявления
ID 94509767
  • Документы проверены
  • 3 года 8 месяцев на Циане
  • 80 000 000 ₽
    1 069 499 $
    902 498
    Цена за метр
    418 849 ₽
    Налог
    УСН
    Автор объявления
    ID 94509767
    Документы проверены