Мы используем куки-файлы. Соглашение об использовании
Площадь302 м²
Этаж1
КатегорияТорговая площадь
Отчёт о привлекательности объектаУзнайте, насколько помещение и район подходят для вашего бизнеса
Что входит в отчёт
  • Охват населения
  • Пешеходный трафик
  • Автомобильный трафик
  • Средний бюджет семьи по району
  • Арендные ставки рядом
  • Точки притяжения
  • Конкуренты в радиусе 1 км
  • Рекомендации по выбору места для бизнеса
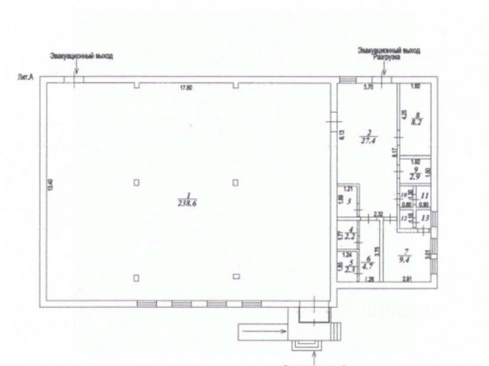
Лот 22385. Продажа торгового помещения с сетевым супермаркетом Дикси в Ступинском районе в отдельно стоящем здании. Высокий пешеходный и автомобильный трафик. Рядом Автозаправка, что обеспечивает дополнительный поток покупателей в супермаркет. Технические характеристики: Общая площадь: 302,1 м2 (часть административного здания), Высота потолка: 3 м, Мощность: 33 кВт, Вода, Канализация, Вентиляция, Кондиционирование, Пожарная сигнализация. Большая парковка. Отдельный вход и удобная зона разгрузки. Полное отсутствие конкуренции в радиусе 3км. Коммерческие условия: МАП: 400.000 рублей (фикс 300 000рублей + 5% от товарооборота). Договор сроком на 10 лет с февраля 2022г. Стоимость продажи - 41.900.000 рублей Стоимость продажи за кв. м. - 138 696 рублей Продажа по ДКП от физ. лица
lock

Войдите или зарегистрируйтесь
для просмотра информации

Просматривайте условия сделки и всю информацию об объекте
Сохраняйте фильтры в поиске и не вводите заново
Доступ к избранному с любого устройства
Неограниченное добавление в избранное
Позвоните автору
Вам ответят на все вопросы
Остались вопросы по объявлению?
Позвоните владельцу объявления и уточните необходимую информацию.
  • Инфраструктура
  • Похожие рядом
Помощь надёжных риелторов
Риелтор партнёр Циан поможет купить или продать любую недвижимость
41 900 000 ₽
556 999 $
475 812
Цена за метр
138 742 ₽
Налог
УСН
Агентство недвижимости
Суперагент
На Циан
9 лет
Объектов в работе
более 2000