Мы используем куки-файлы. Соглашение об использовании
Площадь950 м²
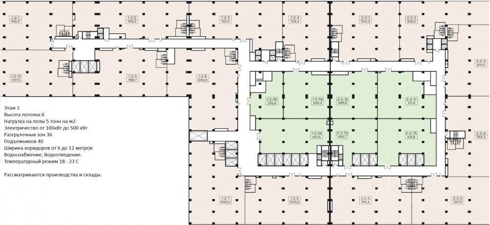
Этаж2 из 7
Выс. потолков6.0 м.
ПомещениеСвободно
Отчёт о привлекательности объектаУзнайте, насколько помещение и район подходят для вашего бизнеса
Что входит в отчёт
  • Охват населения
  • Пешеходный трафик
  • Автомобильный трафик
  • Средний бюджет семьи по району
  • Арендные ставки рядом
  • Точки притяжения
  • Конкуренты в радиусе 1 км
  • Рекомендации по выбору места для бизнеса
Номер ЛОТА: 2175. Производственно складское помещение в новом инновационном кластере. Высота потолка 6 метров каждого этажа. Нагрузка на пол 5 тонн на квадратный метр. Помещение оборудовано: вентиляция, спринклерная система пожаротушения и дымоудаления, канализация и слаботочные системы. На этаже предусмотрены: 18 промышленных лифтов, один многотонный суперлифт, 36 погрузочно-разгрузочных доков. На территории более 400 парковочных мест, стоянка для фур, удобные зоны маневрирования. Профессиональная управляющая компания с расширенным функционалом, ориентированным на эффективную эксплуатацию: - Эксплуатация инженерных систем - Подключение к инженерным системам - Обеспечение пожарной безопасности - Охрана и видеонаблюдение - Service desk тех поддержки в приложении - Профессиональный клининг - Авизация - WMS (автоматизация приемки, отгрузки, инвентаризации и логистик на территории) - Аренда операторов и бригад погрузки - Контроль графика въезда-выезда транспорта - Управление загрузкой и маршрутизация в доки - Диспетчеризация грузовых лифтов, управление загрузкой - Управление паркингом ДАННЫЙ ОБЪЕКТ ВОЗМОЖНО КУПИТЬ В ЛИЗИНГ С АВАНСОМ от 10%, НА СРОК ДО 5 ЛЕТ, С НАЛОГОВОЙ ВЫГОДОЙ ДО 45%!
lock

Войдите или зарегистрируйтесь
для просмотра информации

Просматривайте условия сделки и всю информацию об объекте
Сохраняйте фильтры в поиске и не вводите заново
Доступ к избранному с любого устройства
Неограниченное добавление в избранное
Позвоните автору
Вам ответят на все вопросы
Остались вопросы по объявлению?
Позвоните владельцу объявления и уточните необходимую информацию.
  • Инфраструктура
  • Похожие рядом
  • Категория зданияДействующее
  • Общая площадь950 м²
Помощь надёжных риелторов
Риелтор партнёр Циан поможет купить или продать любую недвижимость
189 000 000 ₽
2 485 093 $
2 108 773
Цена за метр
198 948 ₽
Налог
НДС включен: 34 081 967 ₽
Агентство недвижимости
Документы проверены