Мы используем куки-файлы. Соглашение об использовании
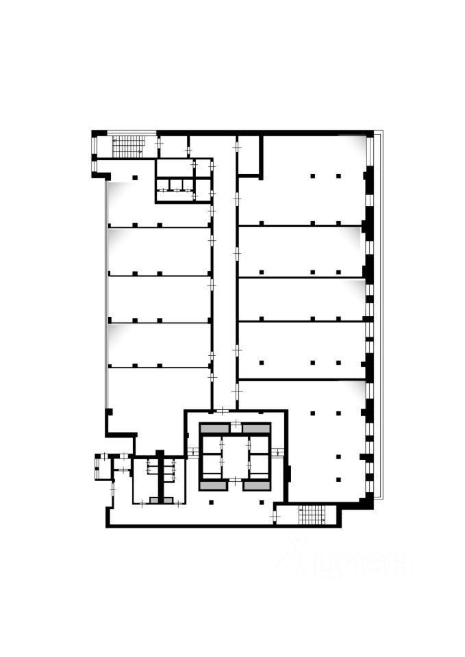
Площадь1 178,2 м²
Этаж2 из 21
Парковка480 мест
ПомещениеСвободно
КлассB+
Отчёт о привлекательности объектаУзнайте, насколько помещение и район подходят для вашего бизнеса
Что входит в отчёт
  • Охват населения
  • Пешеходный трафик
  • Автомобильный трафик
  • Средний бюджет семьи по району
  • Арендные ставки рядом
  • Точки притяжения
  • Конкуренты в радиусе 1 км
  • Рекомендации по выбору места для бизнеса
Премиальный актив в ЮЗАО: панорамный 2-й этаж в БЦ "NEO GEO". Предлагается к продаже уникальный лот — весь 2-й этаж (блок А, 1 178,2 м²) в знаковом бизнес-центре класса B+ "NEO GEO". Это не просто офис, а стратегический актив в центре интеллектуального кластера Москвы, готовый приносить стабильный доход или стать флагманской штаб-квартирой для вашей компании. Объект в цифрах: * Площадь: 1 178,2 м² * Этаж: 2 (блок А) * Локация: 8 минут пешком от м. Калужская * Класс: B+ (круглосуточный доступ, охрана, ресепшн) * Состояние: Качественный ремонт, кабинетная планировка, готов к въезду. * Паркинг: Подземный и наземный. - Для инвестора — стабильный арендный поток: * Нулевая вакансия: Спрос на офисы B+ в этой локации стабильно высокий благодаря окружению научными институтами и бизнес-центрами. * Готовый бизнес: Объект не требует дополнительных вложений и может быть немедленно сдан в аренду. * Надежный актив: Недвижимость в ЮЗАО демонстрирует уверенный рост стоимости. - Для вашего бизнеса — представительский офис: * Имидж компании: Расположение штаб-квартиры на целом этаже в известном БЦ подчеркнет ваш статус. * Вдохновляющая среда: "NEO GEO" — это 125 000 м² деловой экосистемы с атриумами, арт-объектами, зонами отдыха и всей необходимой инфраструктурой. * Транспортная доступность: Прямые выезды на Ленинский проспект, ТТК и МКАД, а также две станции метро в пешей доступности. "NEO GEO" — это не просто стены. Это среда, которая повышает продуктивность команды и производит правильное впечатление на клиентов и партнеров. Отличное предложение для тех, кто мыслит стратегически. Свяжитесь с нами для организации показа.
lock

Войдите или зарегистрируйтесь
для просмотра информации

Просматривайте условия сделки и всю информацию об объекте
Сохраняйте фильтры в поиске и не вводите заново
Доступ к избранному с любого устройства
Неограниченное добавление в избранное
Позвоните автору
Вам ответят на все вопросы
Остались вопросы по объявлению?
Позвоните владельцу объявления и уточните необходимую информацию.
  • Инфраструктура
  • Похожие рядом
Помощь надёжных риелторов
Риелтор партнёр Циан поможет купить или продать любую недвижимость
РиелторPEOPLE
Документы проверены
230 000 000 ₽
3 024 187 $
2 566 232
Цена за метр
195 214 ₽
Налог
НДС включен: 41 475 409 ₽
Агентство недвижимости
Документы проверены
На Циан
1 год
Объектов в работе
384