Мы используем куки-файлы. Соглашение об использовании
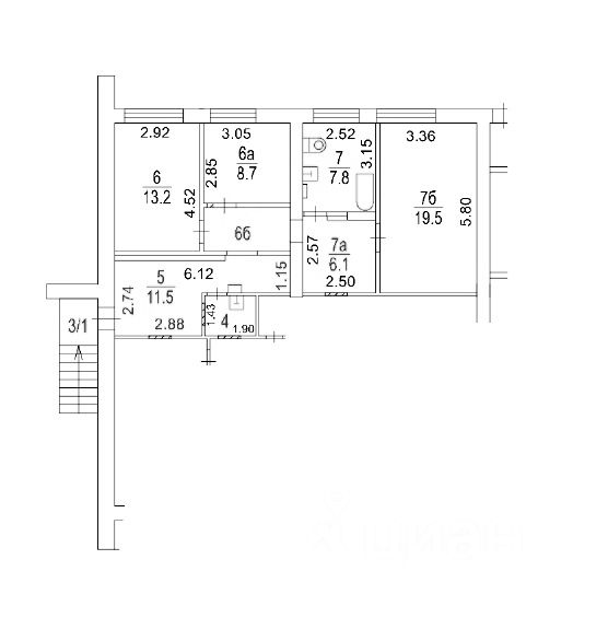
Помещение свободного назначения, 72,7 м²

Продается помещение свободного назначения, 72,7 м²

Площадь72,7 м²
Этаж1 из 16
ПомещениеСвободно
Отчёт о привлекательности объектаУзнайте, насколько помещение и район подходят для вашего бизнеса
Что входит в отчёт
  • Охват населения
  • Пешеходный трафик
  • Автомобильный трафик
  • Средний бюджет семьи по району
  • Арендные ставки рядом
  • Точки притяжения
  • Конкуренты в радиусе 1 км
  • Рекомендации по выбору места для бизнеса
Продается нежилое помещение с ремонтом, расположено на первом этаже жилого дома с отдельным входом в стремительно развивающемся районе! Назначение по документам "Прочие", что позволяет разместить что угодно! Идеально подойдет под офис, апартаменты, салон красоты, ПВЗ, аптеку, бытовые услуги, детский клуб, магазин "у дома", прачечную и так далее. При необходимости, помогу с согласование перепланировки Удобные подъездные пути, много парковочных мест. Прекрасное сочетание обжитого района, сложившейся инфраструктуры и нового строительства поблизости! Планировка офисного, квартирного типа, ремонт только закончен и ждет нового хозяина!
lock

Войдите или зарегистрируйтесь
для просмотра информации

Просматривайте условия сделки и всю информацию об объекте
Сохраняйте фильтры в поиске и не вводите заново
Доступ к избранному с любого устройства
Неограниченное добавление в избранное
Позвоните автору
Вам ответят на все вопросы
Остались вопросы по объявлению?
Позвоните владельцу объявления и уточните необходимую информацию.
  • Инфраструктура
  • Похожие рядом
  • Тип зданияЖилой дом
  • Общая площадь72,7 м²
Центральное отопление
Помощь надёжных риелторов
Риелтор партнёр Циан поможет купить или продать любую недвижимость
РиелторНаталья Ершова
Суперагент
  • 5,0・3
  • 15 лет 6 месяцев на Циане
  • 2 объявления
  • 15 900 000 ₽
    208 528 $
    178 377
    Цена за метр
    218 708 ₽
    Налог
    УСН
    РиелторНаталья Ершова
    Суперагент