Мы используем куки-файлы. Соглашение об использовании
Помещение свободного назначения, 298,9 м²

Продается помещение свободного назначения, 298,9 м²

Площадь298,9 м²
Этаж1 из 5
Отчёт о привлекательности объектаУзнайте, насколько помещение и район подходят для вашего бизнеса
Что входит в отчёт
  • Охват населения
  • Пешеходный трафик
  • Автомобильный трафик
  • Средний бюджет семьи по району
  • Арендные ставки рядом
  • Точки притяжения
  • Конкуренты в радиусе 1 км
  • Рекомендации по выбору места для бизнеса
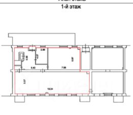
Продаётся коммерческое помещение свободного назначения. Возможно приобретение с заключенными договорами аренды: аптека, медицинский центр, маркетплейсы и т.д. Адрес: Минская ул., д. 22 (ЗАО, район Филёвский парк). Площадь: 298 м². Удобное расположение: близость к метро "Филевский парк" - 5 мин., "Багратионовская", высокий пешеходный и автомобильный трафик. Основные характеристики. Этажи: 1-й этаж + подвал. Площадь первого этажа 140 м2 Площадь подвального помещения 158 м2 Входы: 3 отдельных входа с улицы. Окна: большие, обеспечивают хорошую освещённость. Паркинг: бесплатная парковка. Назначение: помещение свободного назначения. Варианты использования. Идеально подходит для размещения: кафе или ресторана; магазина; медицинского центра; офиса; шоурума; других коммерческих проектов. Условия продажи Предлагается два варианта: С арендатором — готовый арендный бизнес (стабильный доход с первого дня). Без арендатора — для организации собственного бизнеса.
lock

Войдите или зарегистрируйтесь
для просмотра информации

Просматривайте условия сделки и всю информацию об объекте
Сохраняйте фильтры в поиске и не вводите заново
Доступ к избранному с любого устройства
Неограниченное добавление в избранное
Позвоните автору
Вам ответят на все вопросы
Остались вопросы по объявлению?
Позвоните владельцу объявления и уточните необходимую информацию.
  • Инфраструктура
  • Похожие рядом
  • Общая площадь298,9 м²
Естественная вентиляция
Местное кондиционирование
Центральное отопление
Порошковая система пожаротушения
Помощь надёжных риелторов
Риелтор партнёр Циан поможет купить или продать любую недвижимость
Агентство недвижимости
Суперагент
57 000 000 ₽
798 639 $
681 092
Цена за метр
190 700 ₽
Налог
УСН
Агентство недвижимости
Суперагент
На Циан
6 лет
Объектов в работе
41