Мы используем куки-файлы. Соглашение об использовании
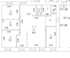
Площадь96,7 м²
Этаж2 из 4
ПомещениеЗанято
Отчёт о привлекательности объектаУзнайте, насколько помещение и район подходят для вашего бизнеса
Что входит в отчёт
  • Охват населения
  • Пешеходный трафик
  • Автомобильный трафик
  • Средний бюджет семьи по району
  • Арендные ставки рядом
  • Точки притяжения
  • Конкуренты в радиусе 1 км
  • Рекомендации по выбору места для бизнеса
Эксклюзивное предложение!Нежилое помещение в самом сердце исторического центра Москвы. Расположено в престижном районе с богатой историей и развитой инфраструктурой. Отличная возможность для бизнеса или инвестиций! Меньше 1 минуты от входа в метро Кропоткинская. хороший ремонт. кабинетная планировка. есть мокрые точки. Есть возможность использовать как апартаменты или перевести в жилой фонд. Все условия для этого есть. Этаж 2 Общая площадь: 96,7 кв.м. Высота потолков: 3,3 м. Городские коммуникации. Парковка во дворе дома.
lock

Войдите или зарегистрируйтесь
для просмотра информации

Просматривайте условия сделки и всю информацию об объекте
Сохраняйте фильтры в поиске и не вводите заново
Доступ к избранному с любого устройства
Неограниченное добавление в избранное
Позвоните автору
Вам ответят на все вопросы
Остались вопросы по объявлению?
Позвоните владельцу объявления и уточните необходимую информацию.
  • Инфраструктура
  • Похожие рядом
Помощь надёжных риелторов
Риелтор партнёр Циан поможет купить или продать любую недвижимость
  • Документы проверены
  • 13 лет 5 месяцев на Циане
  • 6 объявлений
  • 62 855 000 ₽
    842 677 $
    716 167
    Цена за метр
    650 000 ₽
    Налог
    УСН
    РиелторМихаил Руденко
    Документы проверены