Мы используем куки-файлы. Соглашение об использовании

Продается готовый бизнес, 181 м²

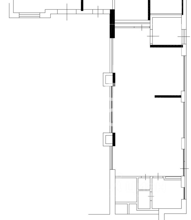
Площадь181 м²
Этаж1
Прибыль1 113 500 ₽/мес.
Отчёт о привлекательности объектаУзнайте, насколько помещение и район подходят для вашего бизнеса
Что входит в отчёт
  • Охват населения
  • Пешеходный трафик
  • Автомобильный трафик
  • Средний бюджет семьи по району
  • Арендные ставки рядом
  • Точки притяжения
  • Конкуренты в радиусе 1 км
  • Рекомендации по выбору места для бизнеса
Продаётся отличное инвестиционное предложение — нежилое помещение площадью 181 м² (возможность увеличения до 310 м²) в новом жилом комплексе! Преимущества предложения: - Свободное назначение помещения позволит вам использовать его по своему усмотрению или сдать в аренду третьему лицу. - Просторная зальная планировка облегчает организацию пространства и повышает эффективность использования площадей. - Надежный сетевой арендатор — компания Дикси, гарантирующая стабильность доходов на протяжении всего срока договора. - Договор аренды заключен сроком на 10 лет с фиксированной ежегодной индексацией арендной платы на уровне 6%. Таким образом, ваш доход будет стабильно расти с каждым годом. - Четко зафиксированные условия аренды обеспечивают полную прозрачность доходов. Такое вложение станет идеальным выбором для инвесторов, стремящихся обеспечить себе надежный источник пассивного дохода на длительный срок. Сделайте правильный выбор, инвестируйте в будущее своего капитала вместе с проверенным партнером и выгодным предложением!
lock

Войдите или зарегистрируйтесь
для просмотра информации

Просматривайте условия сделки и всю информацию об объекте
Сохраняйте фильтры в поиске и не вводите заново
Доступ к избранному с любого устройства
Неограниченное добавление в избранное
Позвоните автору
Вам ответят на все вопросы
Остались вопросы по объявлению?
Позвоните владельцу объявления и уточните необходимую информацию.
  • Инфраструктура
  • Похожие рядом
Помощь надёжных риелторов
Риелтор партнёр Циан поможет купить или продать любую недвижимость
85 000 000 ₽
1 117 635 $
948 390
Цена за метр
469 614 ₽
Налог
НДС включен: 15 327 868 ₽
Агентство недвижимости
Суперагент