Мы используем куки-файлы. Соглашение об использовании
Площадь6 708 м²
Этаж1 из 8
ПомещениеСвободно
КлассA
Отчёт о привлекательности объектаУзнайте, насколько помещение и район подходят для вашего бизнеса
Что входит в отчёт
  • Охват населения
  • Пешеходный трафик
  • Автомобильный трафик
  • Средний бюджет семьи по району
  • Арендные ставки рядом
  • Точки притяжения
  • Конкуренты в радиусе 1 км
  • Рекомендации по выбору места для бизнеса
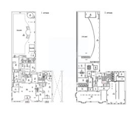
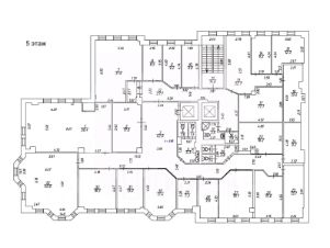
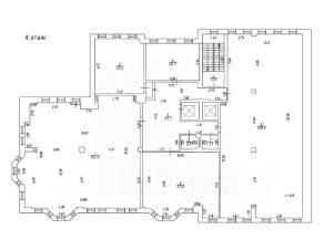
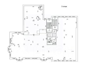
Предлагается на продажу офис в нежилом, отдельно стоящем здании, расположенном в Пресненском районе (ЦАО) внутри Бульварного кольца, на первой линии домов Большого Кисловского переулка, в шаговой доступности от станций метро Арбатская, Библиотека им. Ленина и Охотный ряд. Состав лота: Большой Кисловский 9 (здание целиком) - 5910 м² Большой Кисловский 11 (помещение подвал) - 798 м² Общая площадь : 6708 м² Наземная площадь : 4623 м² Наземная без лестниц : 4473 м² Подвал (2) : 567 м² (высота потолков 230) Подвал (1) : 716 м² (высота потолков 200) Подвал (1) : 798 м² (высота потолков 200) 1 этаж : 950 м² (высота потолков 405) 2 этаж : 808 м² (высота потолков 300) 3 этаж : 588 м² (высота потолков 300) 4 этаж : 534 м² (высота потолков 300) 5 этаж : 518 м² (высота потолков 300) 6 этаж : 506 м² (высота потолков 300) 7 этаж : 480 м² (высота потолков 300) 8 этаж : 244 м² (высота потолков 300) Земельный участок : 1400 м² Площадь застройки : 1200 м² Вид права : аренда до 2061 года ВРИ : размещения административных и офисных зданий (1.2.7) Земельный участок : 338 м² Вид права : общедолевая собственность (9.5%) ВРИ : размещения административных зданий (1.2.7) - Год постройки : 1999 - Наружные стены : монолитные - Перекрытия : монолитные - Пассажирские лифты : 2 шт. - Наземная парковка : 8 м/м - Подземный паркинг : 41 м/м На 6 этаже есть балкон, на мансардном этаже выходы на кровлю. На 1 этаже располагается бассейн. Ранее 4 первых этажа занимал премиальный фитнес клуб А-Fitness. Мощность электричества 450 кВт. Агентства просьба не беспокоить! >ID объекта - 53626
lock

Войдите или зарегистрируйтесь
для просмотра информации

Просматривайте условия сделки и всю информацию об объекте
Сохраняйте фильтры в поиске и не вводите заново
Доступ к избранному с любого устройства
Неограниченное добавление в избранное
Позвоните автору
Вам ответят на все вопросы
Остались вопросы по объявлению?
Позвоните владельцу объявления и уточните необходимую информацию.
  • Инфраструктура
  • Похожие рядом
Помощь надёжных риелторов
Риелтор партнёр Циан поможет купить или продать любую недвижимость
3 000 000 000 ₽
39 445 917 $
33 472 580
Цена за метр
447 228 ₽
Налог
НДС включен: 540 983 606 ₽
Агентство недвижимости
Документы проверены
На Циан
15 лет
Объектов в работе
более 5000