Мы используем куки-файлы. Соглашение об использовании
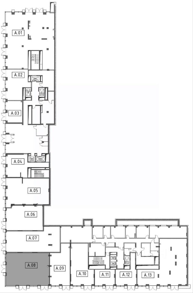
Помещение свободного назначения, 130 м²

Продается помещение свободного назначения, 130 м²

Площадь130 м²
Этаж1 из 24
ПомещениеСвободно
Отчёт о привлекательности объектаУзнайте, насколько помещение и район подходят для вашего бизнеса
Что входит в отчёт
  • Охват населения
  • Пешеходный трафик
  • Автомобильный трафик
  • Средний бюджет семьи по району
  • Арендные ставки рядом
  • Точки притяжения
  • Конкуренты в радиусе 1 км
  • Рекомендации по выбору места для бизнеса
Продаётся коммерческое помещение свободного назначения с отдельным входом на 1 этаже жилого комплекса МИРА от застройщика. Площадь помещения 130 м². Панорамные виды, высокие потолки, свободная и функциональная планировка. МИРА — это дом премиум-класса с собственным входом в Парк Аквендук. Жилой квартал расположен в Алексеевском районе на северо-востоке Москвы. Основные характеристики: - Помещение свободного назначения; - Панорамные окна; - Свободная и функциональная планировка; - Платежеспособный покупательский спрос. Подробности уточняйте по телефону в отделе продаж.
lock

Войдите или зарегистрируйтесь
для просмотра информации

Просматривайте условия сделки и всю информацию об объекте
Сохраняйте фильтры в поиске и не вводите заново
Доступ к избранному с любого устройства
Неограниченное добавление в избранное
Позвоните автору
Вам ответят на все вопросы
Остались вопросы по объявлению?
Позвоните владельцу объявления и уточните необходимую информацию.
  • Инфраструктура
  • Похожие рядом

ЖК МИRА

  • ДевелоперMR
  • Тип зданияЖилой комплекс
  • Категория зданияСтроящееся
  • Общая площадь130 м²
Приточная вентиляция
Центральное отопление
Спринклерная система пожаротушения
Помощь надёжных риелторов
Риелтор партнёр Циан поможет купить или продать любую недвижимость
Агентство недвижимости
Суперагент
118 300 000 ₽
1 580 814 $
1 351 597
Цена за метр
910 000 ₽
Налог
НДС не включен
Агентство недвижимости
Суперагент
На Циан
5 лет
Объектов в работе
125