Мы используем куки-файлы. Соглашение об использовании
Площадь538 м²
Этаж1 из 2
Отчёт о привлекательности объектаУзнайте, насколько помещение и район подходят для вашего бизнеса
Что входит в отчёт
  • Охват населения
  • Пешеходный трафик
  • Автомобильный трафик
  • Средний бюджет семьи по району
  • Арендные ставки рядом
  • Точки притяжения
  • Конкуренты в радиусе 1 км
  • Рекомендации по выбору места для бизнеса
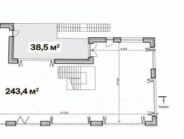
УЮТНЫЙ ОСОБНЯК СО СВОЕЙ ПРИЛЕГАЮЩЕЙ ТЕРРИТОРИЕЙ. Особняк находится в престижной локации в центре Москвы, на пересечении Плотникова переулка и переулка Сивцев Вражек. Налоговая: 04. Лифты: Нет. Вентиляция: Приточно-вытяжная. Кондиционирование: Центральное. Безопасность: Круглосуточный доступ, Круглосуточная охрана, Система пожаротушений, Видеонаблюдение. Парковка: Наземная. Описание помещения: В здании всего 3 уровня. 1 этаж - 230,9 м2. 2 этаж - 243,4 м2. подвал - 64 м2. Отдельный вход с улицы и запасной со двора. Зем. участок площадью 6.2 соток, в аренде до 2064г. Завершение реконструкции в лето 2026г. Планировка: смешанная. Под чистовую отделку. Высокие потолки. Высота потолка: 5.1м. Тип налогообложения: С НДС. Лот 83642-87
lock

Войдите или зарегистрируйтесь
для просмотра информации

Просматривайте условия сделки и всю информацию об объекте
Сохраняйте фильтры в поиске и не вводите заново
Доступ к избранному с любого устройства
Неограниченное добавление в избранное
Позвоните автору
Вам ответят на все вопросы
Остались вопросы по объявлению?
Позвоните владельцу объявления и уточните необходимую информацию.
  • Инфраструктура
  • Похожие рядом
Помощь надёжных риелторов
Риелтор партнёр Циан поможет купить или продать любую недвижимость
750 000 000 ₽
10 026 551 $
8 460 915
Цена за метр
1 394 053 ₽
Налог
НДС включен: 135 245 901 ₽
Агентство недвижимости
Риелтор
Суперагент