Мы используем куки-файлы. Соглашение об использовании

Продается коммерческая земля, 36 сот.

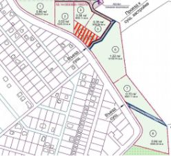
Площадь участка36 сот.
Собственник. Продам земельный участок промышленного назначения, площадью 36 сот., по Щелковскому шоссе в 18 км от Мкад. Разрешенное использование: для производственных целей, склады, придорожный сервис, магазины и прочее. Возможно подключение к газопроводу и электричеству. Обременения отсутствуют. Рядом находится остановка общественного транспорта с маршрутами до Москвы (в т. Ч. До станции метро Щелковская) и ж/д станция Осеевская с маршрутами до центра Москвы (Ярославский вокзал). Возможна покупка от 30 сот. До 3 Га. Подробнее звоните!
lock

Войдите или зарегистрируйтесь
для просмотра информации

Просматривайте условия сделки и всю информацию об объекте
Сохраняйте фильтры в поиске и не вводите заново
Доступ к избранному с любого устройства
Неограниченное добавление в избранное
Позвоните автору
Вам ответят на все вопросы
Остались вопросы по объявлению?
Позвоните владельцу объявления и уточните необходимую информацию.
  • Инфраструктура
  • Похожие рядом
Помощь надёжных риелторов
Риелтор партнёр Циан поможет купить или продать любую недвижимость
Автор объявления
ID 116039574
  • 1 год 11 месяцев на Циане
  • 14 400 000 ₽
    189 260 $
    161 054
    Цена за сотку
    400 000 ₽
    Налог
    УСН
    Автор объявления
    ID 116039574