Мы используем куки-файлы. Соглашение об использовании
Помещение свободного назначения, 19 м²

Продается помещение свободного назначения, 19 м²

Площадь19 м²
Этаж-1 из 5
Отчёт о привлекательности объектаУзнайте, насколько помещение и район подходят для вашего бизнеса
Что входит в отчёт
  • Охват населения
  • Пешеходный трафик
  • Автомобильный трафик
  • Средний бюджет семьи по району
  • Арендные ставки рядом
  • Точки притяжения
  • Конкуренты в радиусе 1 км
  • Рекомендации по выбору места для бизнеса
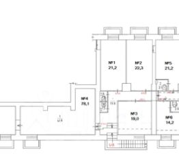
Помещение с ремонтом на плане 3 (с окном) !!! Отдельный кадастровый номер !!! (НЕ ДОЛЯ) В помещении есть мокрая точка (центральная вода и канализация) + в коридоре около входа в блок есть 2 общих санузла Согласовано в МЖИ (МосЖилИнспекция) Помещение в 5-6 минутах от метро от м. Севастопольская и БКЛ Каховская. Высокие потолки - 2,8 метра. Документы готовы к сделке. Один собственник. Звоните.
lock

Войдите или зарегистрируйтесь
для просмотра информации

Просматривайте условия сделки и всю информацию об объекте
Сохраняйте фильтры в поиске и не вводите заново
Доступ к избранному с любого устройства
Неограниченное добавление в избранное
Позвоните автору
Вам ответят на все вопросы
Остались вопросы по объявлению?
Позвоните владельцу объявления и уточните необходимую информацию.
  • Инфраструктура
  • Похожие рядом
  • Тип зданияЖилой дом
  • Площадь участка0 сот.
  • Общая площадь19 м²
Естественная вентиляция
Центральное отопление
Помощь надёжных риелторов
Риелтор партнёр Циан поможет купить или продать любую недвижимость
Автор объявленияОлег Осипов
Суперагент
  • 4,0・4
  • 7 лет на Циане
  • 4 объявления
  • 3 700 000 ₽
    49 535 $
    42 241
    Цена за метр
    194 737 ₽
    Налог
    УСН
    Автор объявленияОлег Осипов
    Суперагент