Мы используем куки-файлы. Соглашение об использовании
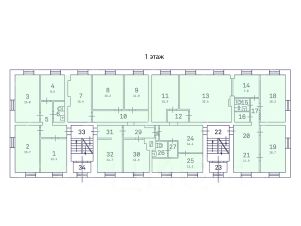
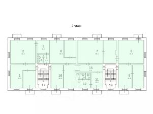
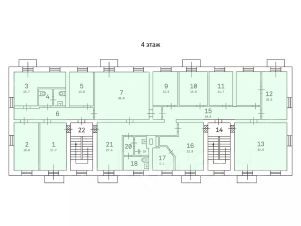
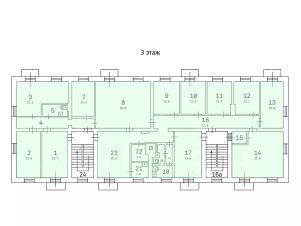
Площадь1 600 м²
Этаж1 из 4
Парковка25 мест
ПомещениеСвободно
КлассB
Отчёт о привлекательности объектаУзнайте, насколько помещение и район подходят для вашего бизнеса
Что входит в отчёт
  • Охват населения
  • Пешеходный трафик
  • Автомобильный трафик
  • Средний бюджет семьи по району
  • Арендные ставки рядом
  • Точки притяжения
  • Конкуренты в радиусе 1 км
  • Рекомендации по выбору места для бизнеса
Офисное помещение 1 600 кв. м в бизнес-центре "Сурикова 24". Прямая продажа, без комиссии. Округ: Северо-Западный (СЗАО). Район: Сокол. Характеристики: - Класс: B+; - Арендопригодная площадь: 1360; - Код налоговой: 43; - Наличие лифта: Есть; - Кол-во мест наземного паркинга: 25; - Интернет-провайдеры: Вымпелком, МГТС, Телеком TZ. Стоимость: 1 101 800 000 руб. Финансовые условия: - Налог: Не облагается налогом. Оформление сделки напрямую от собственника, без комиссии. Готовы оперативно организовать просмотр в удобное время, предоставить PDF-презентацию и план. Точное местоположение объекта можно найти по данным координатам: 55.802935,37.499110 ID = c_1768225
lock

Войдите или зарегистрируйтесь
для просмотра информации

Просматривайте условия сделки и всю информацию об объекте
Сохраняйте фильтры в поиске и не вводите заново
Доступ к избранному с любого устройства
Неограниченное добавление в избранное
Позвоните автору
Вам ответят на все вопросы
Остались вопросы по объявлению?
Позвоните владельцу объявления и уточните необходимую информацию.
  • Инфраструктура
  • Похожие рядом
Помощь надёжных риелторов
Риелтор партнёр Циан поможет купить или продать любую недвижимость
РиелторBright Rich Moscow
Суперагент
1 101 800 000 ₽
14 487 171 $
12 293 363
Цена за метр
688 625 ₽
Налог
НДС включен: 198 685 245 ₽
Агентство недвижимости
На Циан
12 лет
Объектов в работе
более 1000
Риелтор
Суперагент