Мы используем куки-файлы. Соглашение об использовании
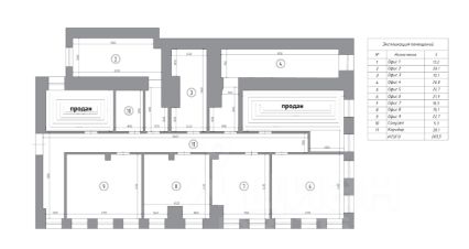
Площадь11,9 м²
Этаж1 из 3
Отчёт о привлекательности объектаУзнайте, насколько помещение и район подходят для вашего бизнеса
Что входит в отчёт
  • Охват населения
  • Пешеходный трафик
  • Автомобильный трафик
  • Средний бюджет семьи по району
  • Арендные ставки рядом
  • Точки притяжения
  • Конкуренты в радиусе 1 км
  • Рекомендации по выбору места для бизнеса
Продается офис после СВЕЖЕГО ремонта рядом с метро/БКЛ Рижская(6 мин пешком). Один из самых зеленых и деловых районов центра Москвы. Более 20% территории - это парки и бульвары: Цветной парк, Сретенский парк, Аптекарский огород, Екатерининский парк. Редкое сочетание развитой инфраструктуры и благоустроенных пространств для отдыха. В окружении офиса - значимые культурные, образовательные и спортивные объекты столицы, создающие комфортную и вдохновляющую атмосферу для работы и отдыха: храм святого Трифона(6 мин пешком), Московская высшая школа экспертизы(7 мин пешком), Кафедральный собор Преображения Господня(10 мин пешком), Московская соборная мечеть(13 мин пешком), Спортивный комплекс "Олимпийский"(22 мин пешком). Офис относится к бизнес-пространству класса А. Оснащен всем необходимым для эффективной работы: системами безопасности и контроля доступа, системой кондиционирования, дизайнерскими зонами общего пользования. Фасад в стиле современного модерна подчеркивает архитектурную выразительность. Гибкая планировка позволяет адаптировать пространство под любые задачи. Стены отделаны штукатуркой. На полу - ламинат и керамическая плитка. Многосценарное освещение всех зон. В санузле стены и пол отделаны плиткой и керамогранитом. Присутствует сантехника, тумба, раковина, зеркало, дозатор для мыла, держатель для полотенец, сушилки для рук. Проведено электричество: в офисе есть розетки, выключатели и освещение. Входная деревянная дверь с высоким уровнем звукоизоляции и электронным замком, с вандалостойкой поверхностью. Стильный дизайн и эргономичность. Общая концепция - современный дизайн, продуманная эргономика и качественные материалы, которые создают достойную рабочую среду для бизнеса. Оперативный показ, быстрый выход на сделку.
lock

Войдите или зарегистрируйтесь
для просмотра информации

Просматривайте условия сделки и всю информацию об объекте
Сохраняйте фильтры в поиске и не вводите заново
Доступ к избранному с любого устройства
Неограниченное добавление в избранное
Позвоните автору
Вам ответят на все вопросы
Остались вопросы по объявлению?
Позвоните владельцу объявления и уточните необходимую информацию.
  • Инфраструктура
  • Похожие рядом
Помощь надёжных риелторов
Риелтор партнёр Циан поможет купить или продать любую недвижимость
РиелторЕвгений Черняк
Суперагент
  • 4,5・23
  • 14 лет 6 месяцев на Циане
  • 24 объявления
  • 4 403 000 ₽
    61 541 $
    51 528
    Цена за метр
    370 000 ₽
    Налог
    УСН
    РиелторЕвгений Черняк
    Суперагент