Мы используем куки-файлы. Соглашение об использовании

Продается здание (B)

Площадь1 184,3 м²
Этажность3
КлассB
Отчёт о привлекательности объектаУзнайте, насколько помещение и район подходят для вашего бизнеса
Что входит в отчёт
  • Охват населения
  • Пешеходный трафик
  • Автомобильный трафик
  • Средний бюджет семьи по району
  • Арендные ставки рядом
  • Точки притяжения
  • Конкуренты в радиусе 1 км
  • Рекомендации по выбору места для бизнеса
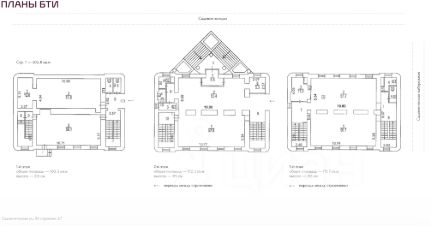
Предлагается к продаже Особняк с летней верандой на первой линии Садового кольца, площадью 1184,3 м2, расположенное на ул. Садовническая, д. 84, стр. 3,7. Площадь: стр.3: 680,5 м2, стр.7: 503,8 м2 + летняя веранда 200м2. Характеристики помещения: - Входы: 1 (парадный с улицы) + 3 (со двора); - Конструктив: Кирпич, ж/б перекрытия; - Коммуникации:• ХВС, ГВС (бойлер) • Канализация • Электроэнергия (220 кВт) • Кондиционирование • Вентиляция приточно-вытяжная; - Ремонт: Чистовая отделка (за выездом арендатора); - высота потолков стр. 3: 2,7-3 м, стр. 7: 3,15 м; - парковка: 3м/м; - ЗУ, м² ВРИ : 538 Предпринимательство (4.0) (земельные участки, предназначенные для размещения объектов торговли, общ.питания и бытового обслуживания (1.2.5)) Здания находятся в центральной части города, на Садовом кольце, в 5 мин.пешком от станции метро Павелецкая, Павелецкого вокзала и ТРЦ Павелецкая Плаза. Рядом остановка общ. транспорта. Интенсивный пешеходный и автомобильный трафик. Торговое, культурное и деловое окружение. Исторически сложившийся плотный, жилой массив.
lock

Войдите или зарегистрируйтесь
для просмотра информации

Просматривайте условия сделки и всю информацию об объекте
Сохраняйте фильтры в поиске и не вводите заново
Доступ к избранному с любого устройства
Неограниченное добавление в избранное
Позвоните автору
Вам ответят на все вопросы
Остались вопросы по объявлению?
Позвоните владельцу объявления и уточните необходимую информацию.
  • Инфраструктура
  • Похожие рядом
Помощь надёжных риелторов
Риелтор партнёр Циан поможет купить или продать любую недвижимость
650 000 000 ₽
9 128 060 $
7 874 541
Цена за метр
548 848 ₽
Налог
НДС включен: 117 213 114 ₽
Агентство недвижимости
Суперагент
На Циан
4 года
Объектов в работе
116