Мы используем куки-файлы. Соглашение об использовании

Продается производство, 2 403,1 м²

Площадь2 403,1 м²
Этаж3 из 3
Выс. потолков6.0 м.
ПомещениеСвободно
Отчёт о привлекательности объектаУзнайте, насколько помещение и район подходят для вашего бизнеса
Что входит в отчёт
  • Охват населения
  • Пешеходный трафик
  • Автомобильный трафик
  • Средний бюджет семьи по району
  • Арендные ставки рядом
  • Точки притяжения
  • Конкуренты в радиусе 1 км
  • Рекомендации по выбору места для бизнеса
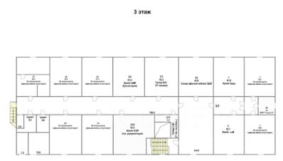
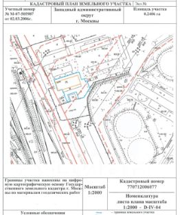
Продается имущественный комплекс на земельном участке 0,2406 га, по адресу улица Рябиновая. Удобное расположение рядом с ключевыми транспортными магистралями, включая МКАД. Статус земельного участка договор аренды до 2059 года. На участке одно здание 3 этажа, площадью 2403 квм ( поэтажный план в разделе фото). Высота потолков 1 этаж 6 м., 2 этаж 6 м., 3 этаж 6 м. Мощности 250 квт. Все помещения отапливаются, коммуникации городские, за исключением горячей воды, стоят бойлеры. Есть помещения, где требуется обновление радиаторов. Фасадная часть здания требует обновления, ничего критичного исключительно ради гармоничного вида. Здание не обременено арендаторами, если покупку рассматриваете как арендный бизнес, можем оперативно заселить Арендатора (есть потенциальный интересант). Быстрый выход на сделку. Звоните, подробнее ответим на все Ваши вопросы.
lock

Войдите или зарегистрируйтесь
для просмотра информации

Просматривайте условия сделки и всю информацию об объекте
Сохраняйте фильтры в поиске и не вводите заново
Доступ к избранному с любого устройства
Неограниченное добавление в избранное
Позвоните автору
Вам ответят на все вопросы
Остались вопросы по объявлению?
Позвоните владельцу объявления и уточните необходимую информацию.
  • Инфраструктура
  • Похожие рядом
  • Общая площадь2 403,1 м²
Естественная вентиляция
Местное кондиционирование
Центральное отопление
Помощь надёжных риелторов
Риелтор партнёр Циан поможет купить или продать любую недвижимость
280 000 000 ₽
3 707 269 $
3 171 633
Цена за метр
116 517 ₽
Налог
НДС включен: 50 491 803 ₽
Агентство недвижимости
Документы проверены
5,0・2