Мы используем куки-файлы. Соглашение об использовании
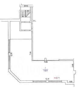
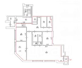
Помещение свободного назначения, 332,3 м²

Продается помещение свободного назначения, 332,3 м²

332 кв.м в минуте от метро

Площадь332,3 м²
Этаж1 из 24
Отчёт о привлекательности объектаУзнайте, насколько помещение и район подходят для вашего бизнеса
Что входит в отчёт
  • Охват населения
  • Пешеходный трафик
  • Автомобильный трафик
  • Средний бюджет семьи по району
  • Арендные ставки рядом
  • Точки притяжения
  • Конкуренты в радиусе 1 км
  • Рекомендации по выбору места для бизнеса
Предлагается к продаже эксклюзивное нежилое помещение в одном из самых престижных районов Москвы — Раменках. Объект расположен в премиальном ЖК Шуваловский по адресу: Мичуринский проспект, д. 3. У локации высокая проходимость, есть парковка, подъезд, до ближайшей станции Ломоносовский проспект 50 м — около минуты пешком, вывеску видно от выхода из метро. Окна помещения выходят на пешеходную аллею и прогулочные зоны с активным потоком как жителей жилого комплекса, так и идущих от метро людей. Характеристики объекта: Общая площадь: 332,3 м². 2 помещения (1 этаж — 221,4 м² и антресоль — 110,9 м²). Электрическая мощность 127 кВт Все центральные коммуникации в отличном состоянии. Большие витринные окна и качественный ремонт внутренних помещений. Объект подходит как для арендного бизнеса, так и для размещения собственного проекта (ресторан, медицинский центр, банк, образовательное учреждение или премиальный офис).
lock

Войдите или зарегистрируйтесь
для просмотра информации

Просматривайте условия сделки и всю информацию об объекте
Сохраняйте фильтры в поиске и не вводите заново
Доступ к избранному с любого устройства
Неограниченное добавление в избранное
Позвоните автору
Вам ответят на все вопросы
Остались вопросы по объявлению?
Позвоните владельцу объявления и уточните необходимую информацию.
  • Инфраструктура
  • Похожие рядом
  • Тип зданияЖилой комплекс
  • Общая площадь332,3 м²
Приточная вентиляция
Местное кондиционирование
Центральное отопление
Сигнализация
Помощь надёжных риелторов
Риелтор партнёр Циан поможет купить или продать любую недвижимость
СобственникID 114982622
    199 000 000 ₽
    2 750 530 $
    2 366 957
    Цена за метр
    598 857 ₽
    Налог
    НДС включен: 35 885 245 ₽
    СобственникID 114982622