Мы используем куки-файлы. Соглашение об использовании

Продается офис (А+)

Площадь260 м²
Этаж3 из 4
ПомещениеСвободно
КлассA+
Отчёт о привлекательности объектаУзнайте, насколько помещение и район подходят для вашего бизнеса
Что входит в отчёт
  • Охват населения
  • Пешеходный трафик
  • Автомобильный трафик
  • Средний бюджет семьи по району
  • Арендные ставки рядом
  • Точки притяжения
  • Конкуренты в радиусе 1 км
  • Рекомендации по выбору места для бизнеса
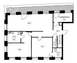
ЦЕЛИКОМ ЭТАЖ С ТЕРРАСОЙ ДЕЛЮКС-КЛАССА! ПЛАТИМ БОНУС Комплекс резиденций с участком 1100 м2 в центре Замоскворечья с отличной транспортной доступностью. Два корпуса объединены двухэтажными механизированным подземным паркингом с скоростной зарядкой и удобными кладовыми. Готовность - 2 квартал 2028 года Налоговая: 05. Лифты: Есть. Вентиляция: Приточно-вытяжная. Кондиционирование: Центральное. Безопасность: Круглосуточный доступ, Круглосуточная охрана, Контроль доступа, Система пожаротушений, Видеонаблюдение. Парковка: Подземная. Описание помещения: Третий этаж с двумя соседними одноуровневыми офисами с двумя выходами на террасу 54,1 м2 и выходом на эксплуатируемую кровлю 93,9 м2. Находится в первом здании премиального комплекса резиденций, на первой линии Пятницкой улицы. Площадь помещений - 143,7 м2 и 116 м2. Планировка: смешанная. Под чистовую отделку. VIP-офис. Высокие потолки. Терраса/балкон. Высота потолка: 3.3м. Тип налогообложения: С НДС. Кол-во парковочных мест: 20. Лот 86094-87
lock

Войдите или зарегистрируйтесь
для просмотра информации

Просматривайте условия сделки и всю информацию об объекте
Сохраняйте фильтры в поиске и не вводите заново
Доступ к избранному с любого устройства
Неограниченное добавление в избранное
Позвоните автору
Вам ответят на все вопросы
Остались вопросы по объявлению?
Позвоните владельцу объявления и уточните необходимую информацию.
  • Инфраструктура
  • Похожие рядом

Пятницкая 40 Шале

  • Общая площадь3 742 м²
Приточная вентиляция
Центральное кондиционирование
Помощь надёжных риелторов
Риелтор партнёр Циан поможет купить или продать любую недвижимость
610 000 000 ₽
8 020 670 $
6 806 092
Цена за метр
2 346 154 ₽
Налог
НДС включен: 110 000 000 ₽
Агентство недвижимости
Риелтор
Суперагент