Мы используем куки-файлы. Соглашение об использовании
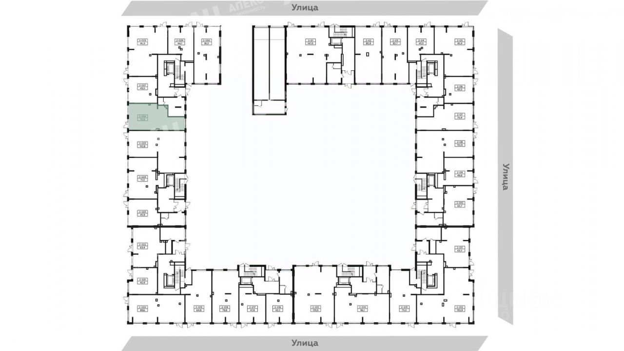
Помещение свободного назначения, 70,9 м²
Площадь70,9 м²
Этаж1 из 9
ПомещениеСвободно
Отчёт о привлекательности объектаУзнайте, насколько помещение и район подходят для вашего бизнеса
Что входит в отчёт
  • Охват населения
  • Пешеходный трафик
  • Автомобильный трафик
  • Средний бюджет семьи по району
  • Арендные ставки рядом
  • Точки притяжения
  • Конкуренты в радиусе 1 км
  • Рекомендации по выбору места для бизнеса
Лот 641176 Предложение от Собственника! Делимся комиссией с коллегами! Продается коммерческое помещение площадью 70,9 кв. м, расположенное на первом этаже жилого дома в ЖК "Родные кварталы". Объект обладает свободной планировкой, выделенной мощностью 14,2 кВт и подключенной канализацией. Ремонт в помещении отсутствует. Назначение помещения свободное, что позволяет разместить медицинский центр, салон красоты, парикмахерскую, офис, ресторан, бар, банк, предприятие бытовых услуг, торговую точку или магазин. Помещение характеризуется следующими параметрами: площадь 70,9 кв. м, высота потолков 5,71 м, разрешенная мощность 14,18 кВт. Вентиляционная система представлена трубами диаметром 160 мм и 125 мм. Входы и этажи внутри помещения отсутствуют, витринное остекление не предусмотрено. Прогнозируемая проходимость составляет от 129 до 463 человек в час (данные предоставлены сервисом "Геоаналитика BestPlace"). Срок сдачи объекта запланирован на III квартал 2026 года. Приобретая помещение, покупатель имеет возможность воспользоваться интерактивным подбором объектов или рассмотреть варианты с акцептом франшизы. Чтобы получить ПОДРОБНУЮ ПРЕЗЕНТАЦИЮ С ПЛАНИРОВКОЙ И ФОТОГРАФИЯМИ, звоните или отправьте свой email и номер телефона в сообщении на портале. Высылаем в течение 15 минут по запросу! Уважаемые коллеги, мы работаем по этому объекту с посредниками и делимся комиссией в соответствии с нашей партнерской программой! Конт. лицо: НОВОСТРОЙКИ, доб. 211, ЛОТ 641176
lock

Войдите или зарегистрируйтесь
для просмотра информации

Просматривайте условия сделки и всю информацию об объекте
Сохраняйте фильтры в поиске и не вводите заново
Доступ к избранному с любого устройства
Неограниченное добавление в избранное
Позвоните автору
Вам ответят на все вопросы
Остались вопросы по объявлению?
Позвоните владельцу объявления и уточните необходимую информацию.
  • Инфраструктура
  • Похожие рядом
  • Тип зданияЖилой дом
  • Общая площадь70,9 м²
Помощь надёжных риелторов
Риелтор партнёр Циан поможет купить или продать любую недвижимость
21 347 281 ₽
286 197 $
243 230
Цена за метр
301 090 ₽
Налог
НДС включен: 3 849 509 ₽
Агентство недвижимости
Суперагент
На Циан
17 лет
Объектов в работе
более 5000