Мы используем куки-файлы. Соглашение об использовании
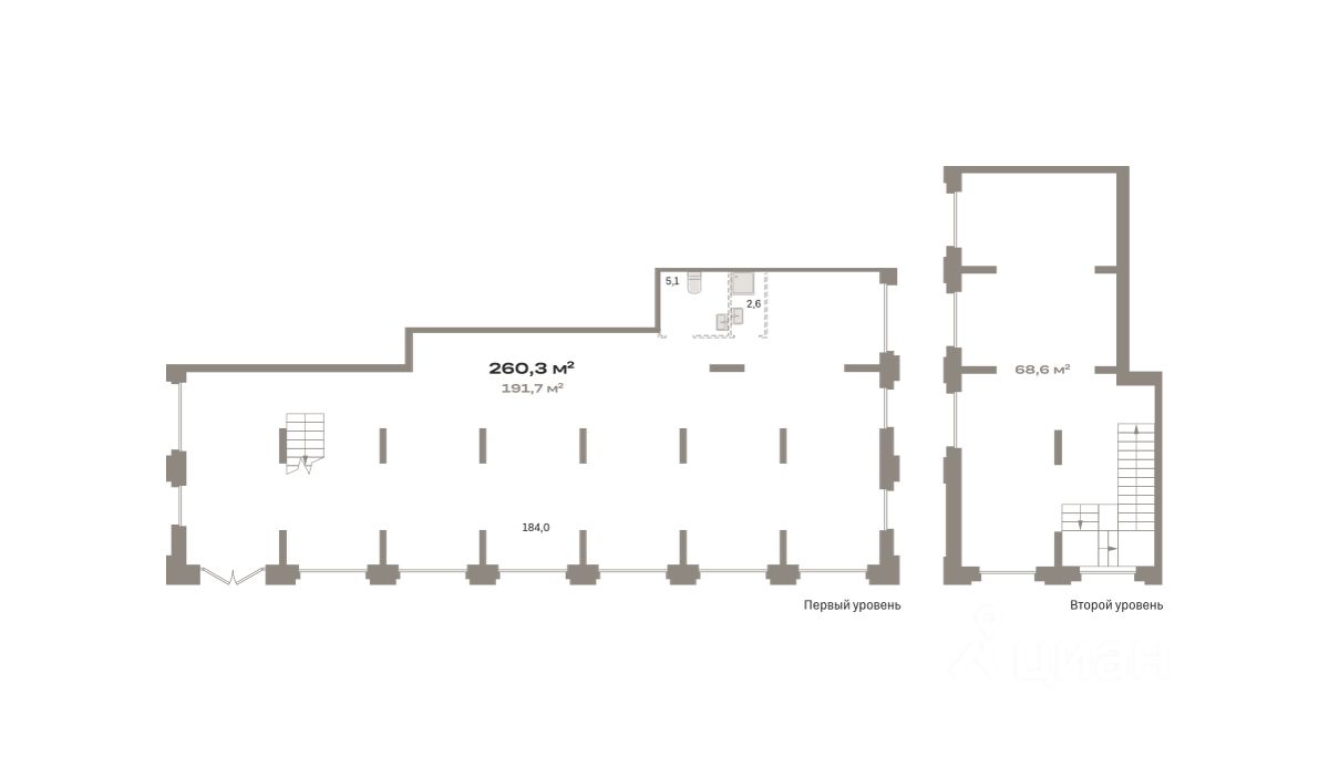
Помещение свободного назначения, 260,3 м²

Продается помещение свободного назначения, 260,3 м²

Площадь260,3 м²
Этаж1 из 31
Отчёт о привлекательности объектаУзнайте, насколько помещение и район подходят для вашего бизнеса
Что входит в отчёт
  • Охват населения
  • Пешеходный трафик
  • Автомобильный трафик
  • Средний бюджет семьи по району
  • Арендные ставки рядом
  • Точки притяжения
  • Конкуренты в радиусе 1 км
  • Рекомендации по выбору места для бизнеса
Проект расположен 1-м Иртышском проезде и включает в себя два жилых квартала переменной высотности, детский сад и коммерческие павильоны. Разноэтажные секции домов высотой от 28 до 100 метров объединит стилобат. Большие дворы квартала закрыты для машин и разделены на функциональные зоны — для тихого отдыха, пикников, игр. Коммерческие помещения расположены по периметру здания с выходом на активные пешеходные и транспортные улицы. В проекте предусмотрены помещения под супермаркет, клиники, кафе и ПВЗ, а также присутствуют помещения свободного назначения с наиболее активным трафиком вблизи остановок наземного транспорта. Площадь застройки 4,3 Га Площадь жилья 222 238 м² Перспективное количество жителей жилого района 4 289 человек Количество жителей в шаговой доступности 40 000 человек
lock

Войдите или зарегистрируйтесь
для просмотра информации

Просматривайте условия сделки и всю информацию об объекте
Сохраняйте фильтры в поиске и не вводите заново
Доступ к избранному с любого устройства
Неограниченное добавление в избранное
Позвоните автору
Вам ответят на все вопросы
Остались вопросы по объявлению?
Позвоните владельцу объявления и уточните необходимую информацию.
  • Инфраструктура
  • Похожие рядом

Квартал «Метроном»

  • ДевелоперБрусника
  • Тип зданияЖилой комплекс
  • Категория зданияСтроящееся
  • Общая площадь260,3 м²
Помощь надёжных риелторов
Риелтор партнёр Циан поможет купить или продать любую недвижимость
106 290 000 ₽
1 489 250 $
1 270 057
Цена за метр
408 337 ₽
Налог
НДС включен: 19 167 049 ₽
Агентство недвижимости
Суперагент