Мы используем куки-файлы. Соглашение об использовании
Помещение свободного назначения, 600 м²

Продается помещение свободного назначения, 600 м²

    Площадь600 м²
    Этаж1 из 3
    ПомещениеСвободно
    Отчёт о привлекательности объектаУзнайте, насколько помещение и район подходят для вашего бизнеса
    Что входит в отчёт
    • Охват населения
    • Пешеходный трафик
    • Автомобильный трафик
    • Средний бюджет семьи по району
    • Арендные ставки рядом
    • Точки притяжения
    • Конкуренты в радиусе 1 км
    • Рекомендации по выбору места для бизнеса
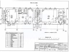
    643292. Предлагаем отдельно стоящий особняк класса "А+" с офисным арендатором, площадью 600 кв. м., расположенный в Басманном районе. 1 этаж, цоколь и мансарда. Без комиссии для покупателя. Преимущества объекта: -10 минут пешком от станции метро Китай-город; -исторический центр города; -сложившееся деловое окружение; -развитая инфраструктура; -смешанная планировка: кабинет, приёмная, 6 с/узлов, помещение для уборки, кухня/ кухня - столовая, 2 гардеробные, архив, серверная; -отделка помещений из натурального дерева и мрамора; -полы - камень, паркет и ковролин; -парковка перед зданием. Технические параметры объекта: -4 общие входные группы; -электрическая мощность: 100 кВт; -высота потолков: от 3 до 4 м. Информация об арендаторе: -арендатор: Офис, ДДА; -доход: 1 380 000 руб./мес. Свяжитесь с нами для получения дополнительной информации!
    lock

    Войдите или зарегистрируйтесь
    для просмотра информации

    Просматривайте условия сделки и всю информацию об объекте
    Сохраняйте фильтры в поиске и не вводите заново
    Доступ к избранному с любого устройства
    Неограниченное добавление в избранное
    Позвоните автору
    Вам ответят на все вопросы
    Остались вопросы по объявлению?
    Позвоните владельцу объявления и уточните необходимую информацию.
    • Инфраструктура
    • Похожие рядом
    • Тип зданияАдминистративное здание
    • Категория зданияДействующее
    • Общая площадь600 м²
    Помощь надёжных риелторов
    Риелтор партнёр Циан поможет купить или продать любую недвижимость
    200 000 000 ₽
    2 629 728 $
    2 231 506
    Цена за метр
    333 334 ₽
    Налог
    УСН
    Агентство недвижимости
    Документы проверены