Мы используем куки-файлы. Соглашение об использовании
Помещение свободного назначения, 4 863,4 м²
Площадь4 863,4 м²
Этаж1 из 2
ПомещениеСвободно
Отчёт о привлекательности объектаУзнайте, насколько помещение и район подходят для вашего бизнеса
Что входит в отчёт
  • Охват населения
  • Пешеходный трафик
  • Автомобильный трафик
  • Средний бюджет семьи по району
  • Арендные ставки рядом
  • Точки притяжения
  • Конкуренты в радиусе 1 км
  • Рекомендации по выбору места для бизнеса
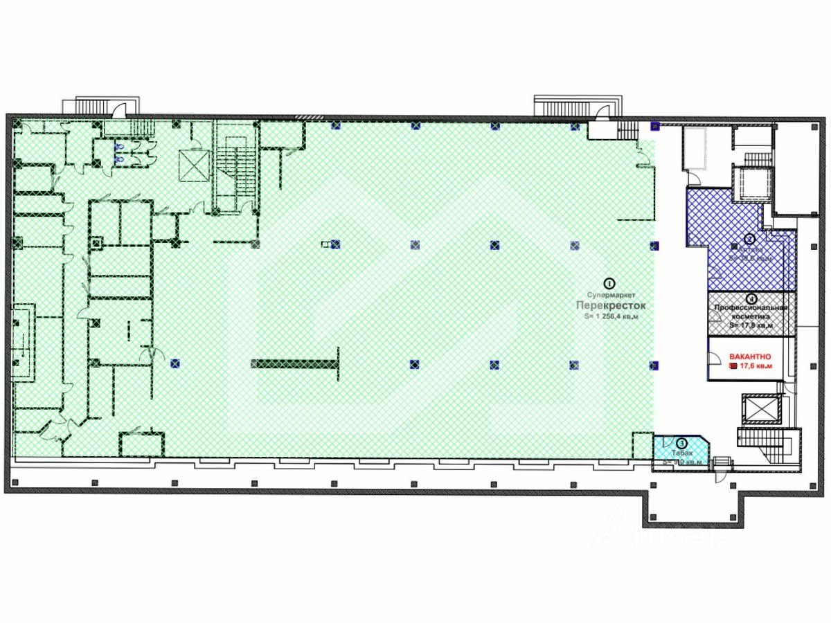
645211. Предлагаем двухэтажный торговый центр с якорными арендаторами "Перекресток", "Детский мир", "Бургер Кинг", "Сбербанк", "Папа Джонс" и др., площадью 4 863,4 кв. м. Без комиссии для покупателя. Преимущества объекта: -пешая доступность от станций метро Кузьминки и Волжская (14 минут пешком); -объект отлично просматривается, находится в легком доступе для клиентов; -развитая инфраструктура района; -надежные сетевые арендаторы; -открытая планировка; -витринное остекление; -место для вывески; -зона разгрузки/погрузки; -все необходимые инженерные системы и коммуникации; -грузопассажирский лифт и два грузовых подъемника; -парковка на 80 машиномест перед объектом; -ДАЗУ (0,1016 Га) до 2059 г. Технические параметры объекта: -2 входные группы; -электрическая мощность: 700 кВт; -высота потолков: 3.2 м. Информация об арендаторах: -арендаторы: "Перекресток", "Детский мир", "Бургер Кинг", "Сбербанк", "Папа Джонс" и др.; -доход в месяц: 8 876 000 руб. Свяжитесь с нами для получения дополнительной информации!
lock

Войдите или зарегистрируйтесь
для просмотра информации

Просматривайте условия сделки и всю информацию об объекте
Сохраняйте фильтры в поиске и не вводите заново
Доступ к избранному с любого устройства
Неограниченное добавление в избранное
Позвоните автору
Вам ответят на все вопросы
Остались вопросы по объявлению?
Позвоните владельцу объявления и уточните необходимую информацию.
  • Инфраструктура
  • Похожие рядом
Помощь надёжных риелторов
Риелтор партнёр Циан поможет купить или продать любую недвижимость
900 000 000 ₽
11 833 775 $
10 041 774
Цена за метр
185 056 ₽
Налог
НДС включен: 162 295 081 ₽
Агентство недвижимости
Документы проверены