Мы используем куки-файлы. Соглашение об использовании
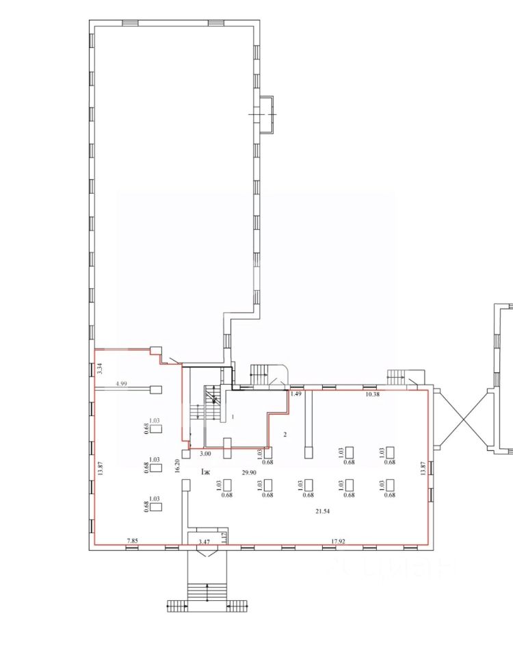
Помещение свободного назначения, 515 м²

Продается помещение свободного назначения, 515 м²

Площадь515 м²
Этаж1 из 5
ПомещениеСвободно
Отчёт о привлекательности объектаУзнайте, насколько помещение и район подходят для вашего бизнеса
Что входит в отчёт
  • Охват населения
  • Пешеходный трафик
  • Автомобильный трафик
  • Средний бюджет семьи по району
  • Арендные ставки рядом
  • Точки притяжения
  • Конкуренты в радиусе 1 км
  • Рекомендации по выбору места для бизнеса
916200. Предлагаем торговое помещение с сетевым арендатором "Дикси", площадью 515 кв. м, расположенное на первом этаже 5-этажного жилого дома. Без комиссии для покупателя. Преимущества объекта: -первая линия ул. Верхняя Первомайская; -шаговая доступность от станции метро "Первомайская" (12 минут пешком); -удобная транспортная доступность: 2.3 км до Щёлковского шоссе, 4.3 км до МКАД, 5.8 км до шоссе Энтузиастов; -плотный жилой массив; -мало коммерческих помещений; -высокий автомобильный и пешеходный трафик; -отлично просматривается, находится в легком доступе для потенциальных клиентов; -гибкая планировка, позволяющая адаптировать пространство под различные нужды; -центральные коммуникации; -возможность размещения вывески; -зона разгрузки/погрузки; -наземная парковка; -рядом остановки общественного транспорта. Технические параметры объекта: -3 отдельные входные группы. -электрическая мощность: 35 кВт. -высота потолков: 3.5 м. Информация об арендаторе: -арендатор: Дикси, ДДА. -прибыль: по запросу. Свяжитесь с нами для получения дополнительной информации!
lock

Войдите или зарегистрируйтесь
для просмотра информации

Просматривайте условия сделки и всю информацию об объекте
Сохраняйте фильтры в поиске и не вводите заново
Доступ к избранному с любого устройства
Неограниченное добавление в избранное
Позвоните автору
Вам ответят на все вопросы
Остались вопросы по объявлению?
Позвоните владельцу объявления и уточните необходимую информацию.
  • Инфраструктура
  • Похожие рядом
  • Тип зданияЖилой дом
  • Общая площадь515 м²
Помощь надёжных риелторов
Риелтор партнёр Циан поможет купить или продать любую недвижимость
162 800 000 ₽
2 140 599 $
1 816 446
Цена за метр
316 117 ₽
Налог
УСН
Агентство недвижимости
Документы проверены