Мы используем куки-файлы. Соглашение об использовании
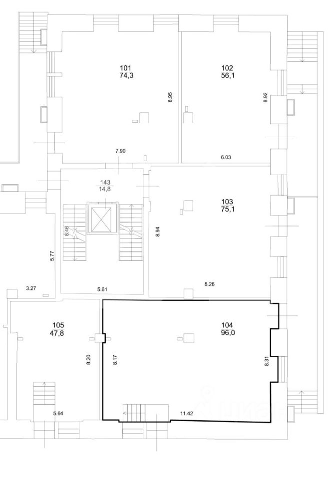
Площадь96 м²
Этаж1 из 7
ПомещениеСвободно
КлассB
Отчёт о привлекательности объектаУзнайте, насколько помещение и район подходят для вашего бизнеса
Что входит в отчёт
  • Охват населения
  • Пешеходный трафик
  • Автомобильный трафик
  • Средний бюджет семьи по району
  • Арендные ставки рядом
  • Точки притяжения
  • Конкуренты в радиусе 1 км
  • Рекомендации по выбору места для бизнеса
952750. Предлагаем помещение свободного назначения с арендатором кафе "Лунго" в клубном доме "Loft FM", площадью 96 кв. м, расположенное на первом этаже 7-этажного жилого дома. Без комиссии для покупателя. Преимущества объекта: -первая линия ул. Нижегородская; -шаговая доступность от станции метро Площадь Ильича (14 минут пешком); -удобная транспортная доступность: 1.8 км до Волгоградского проспекта, 2.5 км до Садового кольца, 3.5 км до ЮВХ и Рязанского проспекта, 4.8 км до ТТК; -плотный жилой массив; -развитая инфраструктура района; -высокий автомобильный и пешеходный трафик; -отлично просматривается, находится в легком доступе для потенциальных клиентов; -гибкая планировка, позволяющая адаптировать пространство под различные нужды; -центральные коммуникации; -витринное остекление; -возможность размещения вывески; -зона разгрузки/погрузки; -наземная парковка; -рядом остановка общественного транспорта. Технические параметры объекта: -2 отдельные входные группы. -электрическая мощность: 20 кВт (с возможностью увеличения). -высота потолков: 4 м. Свяжитесь с нами для получения дополнительной информации!
lock

Войдите или зарегистрируйтесь
для просмотра информации

Просматривайте условия сделки и всю информацию об объекте
Сохраняйте фильтры в поиске и не вводите заново
Доступ к избранному с любого устройства
Неограниченное добавление в избранное
Позвоните автору
Вам ответят на все вопросы
Остались вопросы по объявлению?
Позвоните владельцу объявления и уточните необходимую информацию.
  • Инфраструктура
  • Похожие рядом
Помощь надёжных риелторов
Риелтор партнёр Циан поможет купить или продать любую недвижимость
50 000 000 ₽
664 567 $
565 759
Цена за метр
520 834 ₽
Налог
УСН
Агентство недвижимости
Документы проверены