Мы используем куки-файлы. Соглашение об использовании
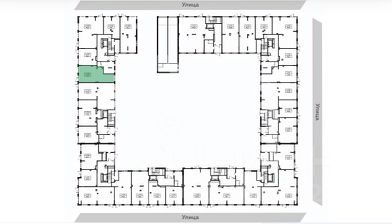
Помещение свободного назначения, 70,9 м²
Площадь70,9 м²
Этаж1 из 9
ПомещениеСвободно
Отчёт о привлекательности объектаУзнайте, насколько помещение и район подходят для вашего бизнеса
Что входит в отчёт
  • Охват населения
  • Пешеходный трафик
  • Автомобильный трафик
  • Средний бюджет семьи по району
  • Арендные ставки рядом
  • Точки притяжения
  • Конкуренты в радиусе 1 км
  • Рекомендации по выбору места для бизнеса
1015170. Предлагаем помещение свободного назначения в ЖК "Родные кварталы", площадью 70.9 кв. м, расположенное на первом этаже 9-этажного жилого дома. Корпус: 2. Без комиссии для покупателя. Преимущества объекта: -ЖК состоит из 3 корпусов переменной этажности (от 9 до 10 этажей), рассчитанных на 1 437 квартиры; -13 минут на автомобиле от станции метро "Пыхтино"; -удобная транспортная доступность: 2 км до Боровского шоссе, 5 км до Внуковского и Киевского шоссе; -плотный жилой массив; -отсутствие конкурентной среды, что гарантирует высокий спрос; -стабильный автомобильный и пешеходный трафик; -находится в легком доступе для потенциальных клиентов; -гибкая планировка, позволяющая адаптировать пространство под различные нужды; -1 мокрая точка; -витринное остекление; -возможность размещения вывески; -наземная парковка. Технические параметры объекта: -отдельный вход с улицы. -электрическая мощность: 14.18 кВт. -высота потолков: 5.71 м. Свяжитесь с нами для получения дополнительной информации!
lock

Войдите или зарегистрируйтесь
для просмотра информации

Просматривайте условия сделки и всю информацию об объекте
Сохраняйте фильтры в поиске и не вводите заново
Доступ к избранному с любого устройства
Неограниченное добавление в избранное
Позвоните автору
Вам ответят на все вопросы
Остались вопросы по объявлению?
Позвоните владельцу объявления и уточните необходимую информацию.
  • Инфраструктура
  • Похожие рядом
  • ДевелоперА101
  • Тип зданияЖилой комплекс
  • Категория зданияСтроящееся
  • Общая площадь70,9 м²
Помощь надёжных риелторов
Риелтор партнёр Циан поможет купить или продать любую недвижимость
19 212 482 ₽
252 618 $
214 364
Цена за метр
270 980 ₽
Налог
НДС не включен
Агентство недвижимости
Документы проверены