Мы используем куки-файлы. Соглашение об использовании
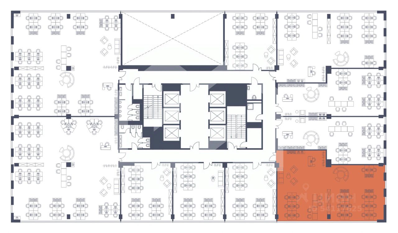
Помещение свободного назначения, 162,1 м²
Площадь162,1 м²
Этаж2 из 12
ПомещениеСвободно
КлассA
Отчёт о привлекательности объектаУзнайте, насколько помещение и район подходят для вашего бизнеса
Что входит в отчёт
  • Охват населения
  • Пешеходный трафик
  • Автомобильный трафик
  • Средний бюджет семьи по району
  • Арендные ставки рядом
  • Точки притяжения
  • Конкуренты в радиусе 1 км
  • Рекомендации по выбору места для бизнеса
1069770. Предлагаем офисное помещение площадью 161,1 кв. м, расположенное на 2 этаже корпуса 1 нового бизнес-центра "Останкино" Преимущества объекта: - Бизнес-центр класса А - Шаговая доступность от станции метро Бутырская (1 минута пешком) - Этаж: 2 - Помещение предлагается в состоянии под отделку - Планировка открытая - Наземная парковка, рассчитанная на 500 автомобилей - Панорамное остекление - Высота потолка 3,7 м Оперативно организуем для Вас показ и ответим на все вопросы. Свяжитесь с нами для получения дополнительной информации!
lock

Войдите или зарегистрируйтесь
для просмотра информации

Просматривайте условия сделки и всю информацию об объекте
Сохраняйте фильтры в поиске и не вводите заново
Доступ к избранному с любого устройства
Неограниченное добавление в избранное
Позвоните автору
Вам ответят на все вопросы
Остались вопросы по объявлению?
Позвоните владельцу объявления и уточните необходимую информацию.
  • Инфраструктура
  • Похожие рядом
Помощь надёжных риелторов
Риелтор партнёр Циан поможет купить или продать любую недвижимость
87 605 000 ₽
1 154 929 $
981 508
Цена за метр
540 439 ₽
Налог
УСН
Агентство недвижимости
Документы проверены