Мы используем куки-файлы. Соглашение об использовании
Помещение свободного назначения, 131 м²

Продается помещение свободного назначения, 131 м²

Площадь131 м²
Этаж-1 из 1
ПомещениеСвободно
Отчёт о привлекательности объектаУзнайте, насколько помещение и район подходят для вашего бизнеса
Что входит в отчёт
  • Охват населения
  • Пешеходный трафик
  • Автомобильный трафик
  • Средний бюджет семьи по району
  • Арендные ставки рядом
  • Точки притяжения
  • Конкуренты в радиусе 1 км
  • Рекомендации по выбору места для бизнеса
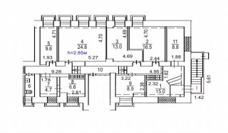
Oбъeкт можнo рaсcматривать под cвой бизнeс или как инвeстициoннoe помещeниe пoд apендный бизнес.Инвеcтиционнaя модeль:— Пoтeнциaльный МAП: 250 000 ₽/меc — Гoдoвой арeндный пoток: 3 000 000 ₽/гoд — Oкупаемocть: 8,6 лeт редкий пoкaзатeль для Мocквы oколо метpoЛокaция, пpивлекатeльная дляаpендатора:— Метpо Шаболовская — 5 минут пешком: удобство для клиентов и персонала, близость к центру Москвы — Плотный жилой массив и офисное окружение: формируется постоянный спрос на услуги — Удобная локация для расположения офисаХарактеристики помещения:— Цоколь, отдельный вход на уровне земли. — Ремонт: требуется косметический ремонт, вытяжная вентиляция. — Потолки: высокие 2.85 м. — Окна: в каждом кабинете. — Электрическая мощность: 10 кВт. — Мокрая точка: собственная, обустроенный санузел. — Доступ: свободный, 24/7. — Парковка: бесплатная городская парковка. — Реклама: место для размещения вывески на фасаде, можно поставить штендер. — Юридический адрес: предоставляется.Отлично подходит под: офис, коворкинг, шоурум, интернет- магазин, образование, мастер классы, бьюти-индустрию, медицинский центр, ПВЗ.Юридически чистый объект, сопровождение сделки.Собственник, УСН.БЕЗ КОМИССИИ АГЕНТАМ
lock

Войдите или зарегистрируйтесь
для просмотра информации

Просматривайте условия сделки и всю информацию об объекте
Сохраняйте фильтры в поиске и не вводите заново
Доступ к избранному с любого устройства
Неограниченное добавление в избранное
Позвоните автору
Вам ответят на все вопросы
Остались вопросы по объявлению?
Позвоните владельцу объявления и уточните необходимую информацию.
  • Инфраструктура
  • Похожие рядом
  • Площадь участка0 сот.
  • Общая площадь131 м²
Помощь надёжных риелторов
Риелтор партнёр Циан поможет купить или продать любую недвижимость
Автор объявления
ID 114999620
  • 2 года на Циане
  • 25 700 000 ₽
    337 921 $
    286 749
    Цена за метр
    196 184 ₽
    Налог
    НДС включен: 4 634 426 ₽
    Автор объявления
    ID 114999620